El presente catalogo de obras presentadas en el Pabellón de Estonia en el XII Bienal de Arquitectura de Venecia tiene una enorme originalidad al trasladar un amplio lenguaje de la arquitectura unifamiliar que representa el 90% de la construida en este país. Esta singular muestra crea valor en su enorme diversidad y sobre todo calidad en las construcciones dadas las condiciones climáticas extremas a las que deben someterse.
Nota: Dado que el presente catalogo se distribuye solo para los medios acreditados lamentamos no poder mantener nuestra licencias habituales de CC y regirnos por las propias que establece el documento.
This catalog of works presented in the Pavilion of Estonia at the XII Biennial of Architecture in Venice has a great originality in moving a large detached language of architecture which represents 90%. This unique sample creates value in its enormous diversity and above all, quality in construction because of the extreme weather conditions which should be satisfied. As we say is a low-cost exposure to give value to something that no doubt are true experts.
Note: Since this catalog is distributed to accredited media only regret not being able to maintain our standard of CC licenses and abide by its own which sets the document.
Commissioner: Ülar Mark, Estonian Centre of Architecture
Curator: Karen Jagodin
Authors: Kalle Vellevoog, Tiiu Truus, Martin Pedanik, Karen Jagodin
Model at the exhibition: Mihkel Tüür, Ott Kadarik, Reedik Poopuu, Märten Tuuling, Aivar Hanniotti
In 2010, Estonia is participating at the Venice Biennale of Architecture – La Biennale di Venezia, with an exposition entitled 100 HOUSES, and has thereby set a clear goal for itself – to present local architectural practices to a wider audience and introduce Estonian architectural life through the narrow sphere of private residential architecture. Kazuyo Sejima, the general curator of the exhibition, has named the 2010 exhibition “People meet in architecture”.
Architecture is encountered by people throughout the built-up environment. The experience of architecture is part of everyday life, divided between many spheres and contrasts: public/private, physical/virtual and modern/classical. One of the initial stages in the experience of architecture is the life environment, which provides personal impulses that affect everyone. The private residence has always been a favorite topic for modern architecture, illustrating in its compactness and simultaneous complexity, people’s relationships with their environment and the way to shape it.
In local architectural literature, private residences have repeatedly been affectionately called “the quality mark of Estonian architecture”. Local building practices differ greatly from the rest of Europe in terms of the proportion of special commissions and standardized projects. While preparing the Estonian exposition, one of the objectives became to highlight the ratio between the number of “catalogue houses” and residences based on specially commissioned projects. The result in Estonia was a very small percentage of standardized projects. One can surmise that only about 10% of local private residences are “catalogue houses”. Of course, one cannot assume that the remaining 90% represent absolutely first-class residential architecture, but a considerable number of high-quality architecture still emerges from such a large number of projects.
There are many reasons why there are such a large number of specially commissioned residences in Estonia based on the population and construction activity. As a young society, there are many young architects working here, for whom it is simpler to enter the labor market than in the older European countries. At the same time, there are also many young clients who are ready to experiment, who are free of clichéd concepts and wishes. It is worth noting that of the hundred residences included in this exhibition, at least half were designed by architects who were under 40 at that time that the buildings were designed. Private commissions are also encouraged by the one-sided, young and still totally undeveloped standardized housing market.
In order to demonstrate the historical continuity and unique position of private residential architecture in the local architectural scene, the exhibition includes private residences with special iconic meaning from the period of the first Estonian Republic and the Soviet era. However, the main emphasis is placed on the 21st century, thereby creating such a voluminous overview of the best of Estonian residential architecture for the first time.
The Exhibition is accompanied by a 250-page catalogue, with rich illustrative material and articles, to expand the topic.
The exhibition and catalogue publication was supported by Cultural Endowment of Estonia and the Estonian Ministry of Culture
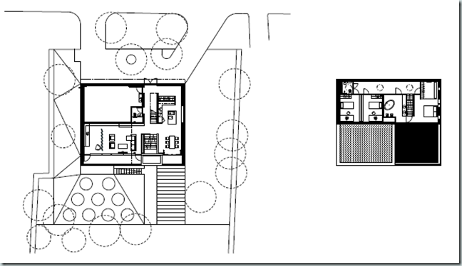
001 Eramu Wismari tänaval/ Private residence on Wismari Street. Tallinn – Erich Jacoby
002 Eramu Toompuiesteel/ Private residence on Toompuiestee Avenue. Tallinn – Herbert Johanson
003 Siinmaa maja Rüütli tänaval/ Siinmaa residence on Rüütli Street. Pärnu – Olev Siinmaa
004 Eramu Nõmmel, Mängu tänaval/ Private residence in Nõmme on Mängu Street. Tallinn – Edgar Velbri
005 Oma maja Kose teel, Pirital/ Architects residence in Pirita on Kose Road. Tallinn – Peeter Tarvas
006 Eramu Varsaallikal, Kaunis tänaval/ Private residence in Varsaallika on Kaunis Street. Tallinn – Uno Tölpus
007 Oma maja Meriväljal, Viimsi teel/ Architects residence in Merivälja on Viimsi Street. Tallinn – Raine Karp
008 Villa Toots Tammelinnas, Tammekuru tänaval / Villa Toots in Tammelinn on Tammekuru Street. Tartu – Toomas Rein
009 Villa Valeri II – Leonhard Lapin
010 Venna maja Meriväljal, Ida teel/ Brothers residence in Merivälja on Ida Road. Tallinn – Veljo Kaasik
011 Villa Mägi Kakumäel/ Villa Mägi in Kakumäe. Tallinn – Emil Urbel (AB Emil Urbel)
012 Eramu Nõmmel, Vabaduse puiesteel/ Private residence in Nõmme on Vabaduse Avenue. Tallinn – Jaan Ollik (Jaan Ollik OÜ)
013 Elamu Rohuneemes/ Private residence in Rohuneeme – Vahur Sova (Teigar Sova Arhitektid OÜ)
014 Villa V Pääskülas, Hommiku tänaval/ Villa V in Pääsküla on Hommiku Street. Tallinn – Markus Kaasik, Andres Ojari, Ilmar Valdur ( 3+1 Arhitektid)
015 Villa Vint Nõmmel, Harku tänaval/ Villa Vint in Nõmme on Harku Street. Tallinn – Vilen Künnapu (AB Künnapu & Padrik)
016 Eramu Pirital, Purje tänaval/ Private residence in Pirita on Purje Street. Tallinn – Aivo Scults (Scults & Partnerid OÜ)
017 InSuburb. Eramu Pirital, Kuldtiiva tänaval/ InSuburb. Private residence in Pirita on Kuldtiiva Street. Tallinn – Markus Kaasik, Andres Ojari, Ilmar Valdur, Kalle Komissarov,
Merje Müürisepp, Indrek Tiigi (3+1 Arhitektid)
018 Eramu Tabasalus, Pääsukese tänaval/ Private residence in Tabasalu on Pääsukese Street – Martin Aunin (EA Reng AS)
019 Eramu Nõmmel, Kaja tänaval/ Private residence in Nõmme on Kaja Street. Tallinn – Tõnu Laigu (QP Arhitektid)
020 Villa Rohuneemes, Pringi külas/ Villa in Rohuneeme in Pringi Village – Raivo Puusepp (AB Raivo Puusepp OÜ)
021 Eramu Pirital/ Private residence in Pirita. Tallinn – Andres Põime (AB Studio 3)
022 Eramu Tiskres, Roostiku tänaval/ Private residence in Tiskre on Roostiku Street – Margit Mutso, Madis Eek (AB Eek & Mutso)
023 Arhitekti oma maja/ Architects residence. Tallinn – Kalle Rõõmus (AB Kalle Rõõmus)
024 Eramu Rannamõisas/ Private residence in Rannamõisa – Mart Kadarik
025 Mardi talu Vaigu külas/ Marts farm in Vaigu Village. Saaremaa – Jüri Okas (AB Okas & Lõoke)
026 Villa Koger Pärnus, Seedri tänaval/ Villa Koger in Pärnu on Seedri Street – Kalle Vellevoog (AB JVR)
027 Villa kloostritagametsas Padisel/ Villa behind the monastry in Padise – Indrek Allmann (AB PLUSS)
028 Villa Künnapu Haabneemes/ Villa Künnapu in Haabneeme – Vilen Künnapu (AB Künnapu & Padrik)
029 Elamu Laulasmaal/ Private residence in Laulasmaa – Raivo Kotov, Andrus Kõresaar (KOKO)
030 Elamu Viimsis, Rohuneeme külas/ Private residence in Viimsi in Rohuneeme Village – Kalle Vellevoog (AB JVR)
031 Torniga villa Pirital/ Villa with a tower in Pirita. Tallinn – Vilen Künnapu (AB Künnapu & Padrik)
032 Eramu Maarjamäel, Kose teel/ Private residence in Maarjamäe on Kose Road. Tallinn – Hannes Niineväli (Kirsima ja Niineväli OÜ)
033 Väike maja Karepal/ Small residence in Karepa – Kalle Vellevoog (AB JVR)
034 Klaasmaja Kakumäel, Silgu tänaval/ Glass house in Kakumäe on Silgu Street. Tallinn – Indrek Tiigi, Ülar Mark, (AB Urban Mark| ALLIANSS ARHITEKTID)
035 Eramu Nõmmel, Kiige tänaval/ Private residence in Nõmme on Kiige Street. Tallinn – Jüri Okas (AB Okas & Lõoke)
036 Maja Lool/ Residence in Loo – Toomas Tammis (Arhitektuuriagentuur/ALLIANSS ARHITEKTID)
037 Villa Miidurannas, Andrese teel/ Villa in Miiduranna on Andrese Road – Emil Urbel, Indrek Erm (AB Emil Urbel)
038 Eramu Raadil, Vahi külas/ Private residence in Vahi Village in Raadi – Raivo Puusepp (AB Raivo Puusepp OÜ)
039 Eramu Mähel, Matka teel/ Private residence in Mähe on Matka Road. Tallinn – Martin Aunin (EA Reng AS)
040 Vaskmaja Tabasalus/ Copper house in Tabasalu – Urmas Muru, Peeter Pere, Janek Maat (Muru & Pere Arhitektid)
041 Eramu Meriväljal, Ranniku teel/ Private residence in Merivälja on Ranniku Road – Emil Urbel, Indrek Erm (AB Emil Urbel)
042 Eramu Lohusalus, Kanarbiku tänaval/ Private residence in Lohusalu on Kanarbiku Street – Ilmar Jalas
043 Ribimaja Kangru külas/ Ribbed House in Kangru Village. Kiili – Urmas Muru, Peeter Pere, Janek Maat (Muru & Pere Arhitektid)
044 Eramu Tabasalus, Kustavi tänaval/ Private residence in Tabasalu on Kustavi Street – Vahur Sova (Teigar Sova Arhitektid OÜ)
045 InBox. Eramu Rohuneemes, Valli teel/ InBox. Private residence in Rohuneeme on Valli Road – Markus Kaasik, Andres Ojari, Ilmar Valdur, Merje Müürisepp (3+1 Arhitektid)
046 Eramu Lubja külas/ Private residence in Lubja Village, Viimsi – Tarmo Teedumäe (Arhitektuuriagentuur/ALLIANSS ARHITEKTID)
047 Eramu Pääskülas, Sambliku tänaval/ Private residence in Pääsküla on Sambliku Street. Tallinn – Emil Urbel, Indrek Erm (AB Emil Urbel)
048 InCity. Eramu Naeri tänaval/ InCity. Private residence on Naeri Street. Tallinn – Markus Kaasik, Andres Ojari, Ilmar Valdur, Kalle Komissarov, Merje Müürisepp (3+1 Arhitektid)
049 Saadiku residents Lauri teel, Meriväljal/ Embassy residence in Merivälja on Lauri Road. Tallinn – Ado Eigi
050 Eramu Maarjamäel, Kase tänaval/ Private residence in Maarjamäe on Kase Street. Tallinn – Reio Avaste (AB Eek & Mutso)
051 Palkmaja Hiiumaal, Tahkuna külas/ Log House in Tahkuna Village, Hiiumaa – Laila Põdra
052 Villa U Nõmmel, Kalda tänaval/ Villa U in Nõmme on Kalda Street. Tallinn – Indrek Unt, Gert Sarv, Lauri Laisaar (FRONT Arhitektid)
053 Eramu Merirahus/ Private residence in Merirahu. Tallinn – Andres Põime (AB Studio 3)
054 Eramu pankrannikul, Ilmandu külas/ Villa on a cliff in Ilmandu Village – Enn Rajasaar (AB JVR)
055 Betoonmaja Veskimöldres, Laaniku tänaval/ Concrete house in Veskimöldre on Laaniku Street. Tallinn – Andres Alver (Alver Arhitektid OÜ)
056 Suvemaja Soorinnal/ Summer house in Soorinna – Tõnu Laigu, Kadri Kerge (QP Arhitektid)
057 Eramu Pringi külas, Pilliroo tänaval/ Private residence in Pringi village on Pilliroo Street. Viimsi – Ülar Mark, Indrek Tiigi, Kaiko Kivi, Kai Kuusik (AB Urban Mark |
ALLIANSS ARHITEKTID)
058 Villa Harjumaal Andineemel/ Villa in Andineeme, Harju County – Vahur Sova (Teigar Sova Arhitektid OÜ)
059 Villa Suurupis Välja teel/ Villa in Suurupi on Välja Road – Raul Vaiksoo (AB Raul Vaiksoo)
060 Villa Lokaator Paldiskis/ Villa Locator in Paldiski – Siiri Vallner, Indrek Peil (Head Arhitektid OÜ)
061 Must maja Kiilis/ Black residence in Kiili – Ralf Lõoke (AB Salto)
062 Eramu Viimsis, Mäekünka teel/ Private residence in Viimsi on Mäekünka Road – Eero Palm, Kristiina Ott (AB Palm-E)
063 Eramu Vismeistris, Vaalu tänaval/ Private residence in Vismeistri on Vaalu Street. Tallinn – Margus Pilter (AB Pilter ja Taras)
064 Maja Muraste pangapealsel/ House on a cliff in Muraste – Ralf Lõoke (AB Salto)
065 Maakodu Purdi külas/ Country home in Purdi Village – Sten Ader (SKAD Arhitektid OÜ)
066 Alumiiniummaja Rannamõisas/ Aluminium house in Rannamõisa – Urmas Muru, Peeter Pere (Muru& Pere Arhitektid)
067 Eramu Kakumäel, Silgu tänaval/ Private residence in Kakumäe on Silgu Street. Tallinn – Indrek Järve, Aivo Schults (Schults & Partnerid)
068 Betoonmaja Suurupis, Ida teel/ Concrete house in Suurupi on Ida Street – Madis Eek (AB Eek & Mutso)
069 Valge maja Nõmmel, Metsanurga tänaval / White house in Nõmme on Metsanurga Street. Tallinn – Martin Aunin (EA Reng AS)
070 Eramu Pärnumaal, Uulu külas/ Private residence in Uulu Village, Pärnumaa – Andres Alver (Andres Alver Arhitektid)
071 Konsoolelamu Pirital/ Cantilivered residence in Pirita, Tallinn – Hindrek Kesler (AB Zero)
072 Villa HR Põdrakanepi teel/ Villa HR on Põdrakanepi Street. Tallinn – Andri Kirsima (Arhitektuuriüksus OÜ)
073 Eramu Kuressaares, Videviku tänaval / Private residence in Kuressaare on Videviku Street. Saaremaa – Raivo Kotov, Andrus Kõresaar (KOKO)
074 Talu Jõgisool/ Farm in Jõgisoo – Jaak Huimerind
075 Villa Tabasalus, Madise teel/ Villa in Tabasalu on Madise Road – Tiit Trummal (Tiit Trummal Arhitektid)
076 Villa Meriväljal/ Villa in Merivälja, Tallinn – Toomas Tammis, Inga Raukas, Tarmo Teedumäe (Arhitektuuriagentuur/ALLIANSS ARHITEKTID)
077 Eramu Varju tänaval, Kuressaares/ Private residence on Varju Street in Kuressaare – Kiira Soosaar
078 Eramu Merirahus/ Private residence in Merirahu, Tallinn – Kristel Ausing, Andres Siim (AS Siim & Kreis)
079 Golfimaja Jõelähtmel/ Golfing house in Jõelähtme – Andres Siim (AS Siim & Kreis)
080 Eramu Rohuneemes, Sääre teel/ Private residence in Rohuneeme, Sääre Road – Margus Maiste (Maiste Proge OÜ)
081 Eramu Rocca al Mares, Loigu tänaval/ Private residence in Rocca al Mare on Loigu Street. Tallinn – Raul Vaiksoo (AB Raul Vaiksoo)
082 Maja Heldri külas/ Residence in Heldri Village. Viimsi – Ott Kadarik, Villem Tomiste, Mihkel Tüür (AB Kosmos)
083 Villa Draiver Kuressaares/ Villa Draiver in Kuressaare. Saaremaa – Terje Truumaa (Ösel Plan OÜ)
084 Vaskvilla Võrus/ Copper Villa in Võru – Karmo Tõra (ROK-Projekt OÜ)
085 Eramu Viitnal, Loobu külas/ Private residence in Viitna in Loobu Village – Raul Vaiksoo (AB Raul Vaiksoo)
086 Eramu Suurupis/ Private residence in Suurupi – Urmas Muru, Peeter Pere, Anna-Maria Erik (Muru & Pere Arhitektid)
087 Villa Keila-Joal, Meremõisa külas/ Villa in Keila-Joa in Meremõisa Village – Andres Alver (Alver Arhitektid OÜ)
088 Eramu Merirahus/ Private residence in Merirahu. Tallinn – Veronika Valk, Kadri Klementi (OÜ Zizi&Yoyo)
089 Eramu Meriväljal/ Private residence in Merivälja. Tallinn – Toomas Tammis (Arhitektuuriagentuur/ALLIANSS ARHITEKTID)
090 Eramu Nõmmel Vanemuise tänaval/ Private residence in Nõmme on Vanemuise Street. Tallinn – Madis Eek (AB Eek & Mutso)
091 Vaskmaja Murastes, Kivimaa tänaval/ Copper house in Muraste on Kivimaa Street – Margus Tamm
092 Betoonmaja Pärnus, Kaarli puiesteel/ Concrete house on Kaarli Avenue. Pärnu – Andres Alver, Sven Koppel, Tarmo Laht, Ulla Saar (Alver Arhitektid OÜ)
093 Must maja Kakumäel, Säina tänaval/ Black house in Kakumäe, Säina Street. Tallinn – Rein Murula (AB Rein Murula OÜ)
094 Villa Nord Aseris/ Villa Nord in Aseri – Maarja Kask, Karli Luik, Ralf Lõoke (AB Salto)
095 Eramu Merirahus/ Private residence in Merirahu. Tallinn – Lembit-Kaur Stöör, Ülo-Tarmo Stöör (KOKO)
096 Betoonmaja Meriväljal, Vahtramäe teel/ Concrete house in Merivälja, Vahtramäe Street. Tallinn – Andres Lember (Male maja OÜ)
097 Suvemaja Hiiumaal, Puliste külas/ Summerhouse in Hiiumaa in Puliste Village – Tiit Trummal (Tiit Trummal Arhitektid)
098 Must maja Nõmmel, Valguse tänaval/ Black house in Nõmme on Valguse Street. Tallinn – Martin Aunin (EA Reng AS)
099 Villa RA Kilu tänaval/ Villa RA on Kilu Street. Tallinn – Gert Sarv (AB November)
100 Eramu Nõmmel, Edu tänaval/ Private residence in Nõmme, Edu Street. Tallinn – Tiit Trummal (Tiit Trummal Arhitektid)
Eramu Wismari tänaval/ Private residence on Wismari Street. Tallinn
Arhitekt/ Architect: Erich Jacoby
Projekt/ Design: 1923
Valmis/ Completed: 1923
001
Eramu Toompuiesteel/ Private residence on Toompuiestee Avenue. Tallinn
Arhitekt/ Architect: Herbert Johanson
Projekt/ Design: 1929
Valmis/ Completed: 1929
002
Siinmaa maja Rüütli tänaval/ Siinmaa residence on Rüütli Street. Pärnu
Arhitekt/ Architect: Olev Siinmaa
Projekt/ Design: 1931
Valmis/ Completed: 1933
003
Eramu Nõmmel, Mängu tänaval/ Private residence in Nõmme on Mängu Street. Tallinn
Arhitekt/ Architect: Edgar Velbri
Valmis/ Completed: 1933
004
Oma maja Kose teel, Pirital/ Architects residence in Pirita on Kose Road. Tallinn
Arhitekt/ Architect: Peeter Tarvas
Projekt/ Design: 1948
Valmis/ Completed: 1955
005
Eramu Varsaallikal, Kaunis tänaval/ Private residence in Varsaallika on Kaunis Street. Tallinn
Arhitekt/ Architect: Uno Tölpus
Projekt/ Design: 1958
Valmis/ Completed: 1967
006
Oma maja Meriväljal, Viimsi teel/ Architects residence in Merivälja on Viimsi Street. Tallinn
Arhitekt/ Architect: Raine Karp
Projekt/ Design: 1966
Valmis/ Completed: 1973
Pindala/ Area: 219m²
007
Villa Toots Tammelinnas, Tammekuru tänaval / Villa Toots in Tammelinn on Tammekuru Street. Tartu
Arhitekt/ Architect: Toomas Rein
Projekt/ Design: 1972
Valmis/ Completed: 1975
008
Villa Valeri II
Arhitekt/ Architect: Leonhard Lapin
Projekt/ Design: 1977
Valmis/ Completed: 1985
Pindala/ Area: 140m²
009
Venna maja Meriväljal, Ida teel/ Brothers residence in Merivälja on Ida Road. Tallinn
Arhitekt/ Architect: Veljo Kaasik
Projekt/ Design: 1976
Valmis/ Completed: 1985
Pindala/ Area: 104m²
010
Villa Mägi Kakumäel/ Villa Mägi in Kakumäe. Tallinn
Arhitekt/ Architect: Emil Urbel (AB Emil Urbel)
www.emilurbel.ee
Sisearhitekt/ Interior Designer: Taso Mähar
Projekt/ Design: 1996
Valmis/ Completed: 1999
Pindala/ Area: 237m²
011
Eramu Nõmmel, Vabaduse puiesteel/ Private residence in Nõmme on Vabaduse Avenue. Tallinn
Arhitekt/ Architect: Jaan Ollik (Jaan Ollik OÜ)
Kujunduskonsultant/ Design Consultant: Tiit Jürna
Projekt/ Design: 2000
Valmis/ Completed: 2000
Pindala/ Area: 293m²
012
Eramu Rohuneemes/ Private residence in Rohuneeme
Arhitekt/ Architect: Vahur Sova (Teigar Sova Arhitektid OÜ)
Sisearhitekt/ Interior Designer: Aita Teigar (Teigar Sova Arhitektid OÜ)
www.tsarh.ee
Projekt/ Design: 1998
Valmis/ Completed: 2000
Pindala/ Area: 404m²
013
Villa V Pääskülas, Hommiku tänaval/ Villa V in Pääsküla on Hommiku Street. Tallinn
Arhitekt/ Architect: Markus Kaasik, Andres Ojari, Ilmar Valdur ( 3+1 Arhitektid)
www.threeplusone.ee
Sisearhitekt/ Interior Designer: Markus Kaasik, Andres Ojari, Ilmar Valdur ( 3+1 Arhitektid)
Projekt/ Design: 1998-2000
Valmis/ Completed: 2001
Pindala/ Area: 354m²
014
Villa Vint Nõmmel, Harku tänaval/ Villa Vint in Nõmme on Harku Street. Tallinn
Arhitekt/ Architect: Vilen Künnapu (AB Künnapu & Padrik)
www.kassiopeia.ee
Sisearhitekt/ Interior Designer: Tea Tammelaan
Projekt/ Design: 2000
Valmis/ Completed: 2001
Pindala/ Area: 168m²
015
Eramu Pirital, Purje tänaval/ Private residence in Pirita on Purje Street. Tallinn
Arhitekt/ Architect: Aivo Schults (Schults & Partnerid OÜ)
Sisearhitekt: Priit Põldme (Joonprojekt)
www.joon.ee
Projekt/ Design: 2001
Valmis/ Completed: 2001
Pindala/ Area: 321m²
016
InSuburb. Eramu Pirital, Kuldtiiva tänaval/ InSuburb. Private residence in Pirita on Kuldtiiva Street. Tallinn
Arhitekt/ Architect: Markus Kaasik, Andres Ojari, Ilmar Valdur, Kalle Komissarov, Merje Müürisepp, Indrek Tiigi (3+1 Arhitektid)
www.threeplusone.ee
Sisearhitekt/ Interior Designer: Markus Kaasik, Andres Ojari, Ilmar Valdur, Kalle Komissarov, Merje Müürisepp, Indrek Tiigi (3+1 Arhitektid)
Projekt/ Design: 1999-2000
Valmis/ Completed: 2001
Pindala/ Area: 150m²
017
Eramu Tabasalus, Pääsukese tänaval/ Private residence in Tabasalu on Pääsukese Street
Arhitekt/ Architect: Martin Aunin (EA Reng AS)
www.eareng.ee
Sisearhitekt/ Interior Designer: Mari Koger
www.boom.ee
Projekt/ Design: 1998
Valmis/ Completed: 2002
Pindala/ Area: 282m²
018
Eramu Nõmmel, Kaja tänaval/ Private residence in Nõmme on Kaja Street. Tallinn
Arhitekt/ Architect: Tõnu Laigu (QP Arhitektid)
www.qparh.ee
Sisearhitekt/ Interior Designer: Mari Kurismaa
Projekt/ Design: 2001-2002
Valmis/ Completed: 2002
Pindala/ Area: 348m²
019
Villa Rohuneemes, Pringi külas/ Villa in Rohuneeme in Pringi Village
Arhitekt/ Architect: Raivo Puusepp (AB Raivo Puusepp OÜ)
www.puusepp.ee
Sisearhitekt/ Interior Designer: Kaire Kemp-Tišler
Projekt/ Design: 2001
Valmis/ Completed: 2002
Pindala/ Area: 810m²
020
Eramu Pirital/ Private residence in Pirita. Tallinn
Arhitekt/ Architect: Andres Põime (AB Studio 3)
www.studio3.ee
Sisearhitekt/ Interior Designer: Tiiu Truus
www.truus.ee
Projekt/ Design: 2000-2001
Valmis/ Completed: 2002
Pindala/ Area: 452m²
021
Eramu Tiskres, Roostiku tänaval/ Private residence in Tiskre on Roostiku Street
Arhitekt/ Architect: Margit Mutso, Madis Eek (AB Eek & Mutso)
www.eekmutso.ee
Sisearhitekt/ Interior Designer: Anu Habakukk
Projekt/ Design: 2001
Valmis/ Completed: 2002
Pindala/ Area: 223m²
022
Arhitekti oma maja/ Architects residence. Tallinn
Arhitekt/ Architect: Kalle Rõõmus (AB Kalle Rõõmus)
www.arh.ee
Sisearhitekt/ Interior Designer: Kalle Rõõmus (AB Kalle Rõõmus)
Projekt/ Design: 2001
Valmis/ Completed: 2002
Pindala/ Area: 200m²
023
Eramu Rannamõisas/ Private residence in Rannamõisa
Arhitekt/ Architect: Mart Kadarik
www.domeen.arhitektuur.ee
Sisearhitekt/ Interior Designer: Mart Kadarik
Projekt/ Design: 2001
Valmis/ Completed: 2002
Pindala/ Area: 239m², kasulik pind/ useful area 180m²
024
Mardi talu Vaigu külas/ Marts farm in Vaigu Village. Saaremaa
Arhitekt/ Architect: Jüri Okas (AB Okas & Lõoke)
www.abol.ee
Sisearhitekt/ Interior Designer: Jüri Okas, Rein Tallermo (tellija/client)
Projekt/ Design: 2002
Valmis/ Completed: 2002
Pindala/ Area: 124m²
025
Villa Koger Pärnus, Seedri tänaval/ Villa Koger in Pärnu on Seedri Street
Arhitekt/ Architect: Kalle Vellevoog (AB JVR)
www.jvr.ee
Sisearhitekt/ Interior Designer: Katrin Vaikla, Argo Vaikla, Tiina Teng (AS Vaikla Disain)
www.vaikladesign.ee
Projekt/ Design: 2001
Valmis/ Completed: 2003
Pindala/ Area: 495m²
026
Villa kloostritagametsas Padisel/ Villa behind the monastry in Padise
Arhitekt/ Architect: Indrek Allmann (AB PLUSS)
www.pluss.ee
Sisearhitekt/ Interior Designer: Andres Rohtla, Tarmo Luisk (DAK)
www.dak.ee
Projekt/ Design: 1999
Valmis/ Completed: 2003
Pindala/ Area: 265m²
027
Villa Künnapu Haabneemes/ Villa Künnapu in Haabneeme
Arhitekt/ Architect: Vilen Künnapu (AB Künnapu & Padrik)
www.kassiopeia.ee
www.vilenkunnapu.pri.ee
Sisearhitekt/ Interior Designer: Vilen Künnapu (AB Künnapu & Padrik)
Projekt/ Design: 2002
Valmis/ Completed: 2003
Pindala/ Area: 135m²
028
Eramu Laulasmaal/ Private residence in Laulasmaa
Arhitekt/ Architect: Raivo Kotov, Andrus Kõresaar (KOKO)
www.koko.ee
Sisearhitekt/ Interior Designer: Hannes Praks (KOKO)
Projekt/ Design: 2001
Valmis/ Completed: 2003
Pindala/ Area: 200m²
029
Eramu Viimsis, Rohuneeme külas/ Private residence in Viimsi in Rohuneeme Village
Arhitekt/ Architect: Kalle Vellevoog (AB JVR)
www.jvr.ee
Sisearhitekt/ Interior Designer: Tiiu Truus
www.truus.ee
Projekt/ Design: 2002
Valmis/ Completed: 2003
Pindala/ Area: 260m²
030
Torniga villa Pirital/ Villa with a tower in Pirita. Tallinn
Arhitekt/ Architect: Vilen Künnapu (AB Künnapu & Padrik)
www.kassiopeia.ee
Sisearhitekt/ Interior Designer: Tea Tammelaan
Projekt/ Design: 2001
Valmis/ Completed: 2003
Pindala/ Area: 310m²
031
Eramu Maarjamäel, Kose teel/ Private residence in Maarjamäe on Kose Road. Tallinn
Arhitekt/ Architect: Hannes Niineväli (Kirsima ja Niineväli OÜ)
www.arhitektuuristuudio.ee
Sisearhitekt/ Interior Designer: Martin Kruus, Hannes Niineväli
Projekt/ Design: 2002
Valmis/ Completed: 2003
Pindala/ Area: 141m²
032
Väike maja Karepal/ Small residence in Karepa
Arhitekt/ Architect: Kalle Vellevoog (AB JVR)
www.jvr.ee
Projekt/ Design: 2002
Valmis/ Completed: 2003
Pindala/ Area: 35m²
033
Klaasmaja Kakumäel, Silgu tänaval/ Glass house in Kakumäe on Silgu Street. Tallinn
Arhitekt/ Architect: Indrek Tiigi, Ülar Mark, (AB Urban Mark| ALLIANSS ARHITEKTID)
www.urbanmark.ee
www.allianss.eu
Sisearhitekt/ Interior Designer: Raina Lillepõld-Gaydon
Projekt/ Design: 2002
Valmis/ Completed: 2004
Pindala/ Area: 175m²
034
Eramu Nõmmel, Kiige tänaval/ Private residence in Nõmme on Kiige Street. Tallinn
Arhitekt/ Architect: Jüri Okas (AB Okas & Lõoke)
www.abol.ee
Sisearhitekt/ Interior Designer: Tarmo Piirmets (PINK)
www.pink.ee
Projekt/ Design: 2001
Valmis/ Completed: 2004
Pindala/ Area: 321m²
035
Maja Lool/ Residence in Loo
Arhitekt/ Architect: Toomas Tammis (Arhitektuuriagentuur| ALLIANSS ARHITEKTID)
www.arhitektuuriagentuur.ee
www.allianss.eu
Sisearhitekt/ Interior Designer: Toomas Tammis (Arhitektuuriagentuur| ALLIANSS ARHITEKTID)
Projekt/ Design: 2001-2002
Valmis/ Completed: 2004
Pindala/ Area: 160m²
036
Villa Miidurannas, Andrese teel/ Villa in Miiduranna on Andrese Road
Arhitekt/ Architect: Emil Urbel, Indrek Erm (AB Emil Urbel)
www.emilurbel.ee
Sisearhitekt/ Interior Designer: Katrin Vaikla, Argo Vaikla, Tiina Teng (AS Vaikla Disain)
www.vaikladesign.ee
Projekt/ Design: 2001
Valmis/ Completed: 2004
Pindala/ Area: 528m²
037
Eramu Raadil, Vahi külas/ Private residence in Vahi Village in Raadi
Arhitekt/ Architect: Raivo Puusepp (AB Raivo Puusepp OÜ)
www.puusepp.ee
Sisearhitekt/ Interior Designer: Eerik Olle
Projekt/ Design: 2003
Valmis/ Completed 2004
Pindala/ Area: 350m²
038
Eramu Mähel, Matka teel/ Private residence in Mähe on Matka Road. Tallinn
Arhitekt/ Architect: Martin Aunin (EA Reng AS)
www.eareng.ee
Sisearhitekt/ Interior Designer: Mari Koger
www.boom.ee
Projekt/ Design: 2002
Valmis/ Completed: 2004
Pindala/ Area: 172m²
039
Vaskmaja Tabasalus/ Copper house in Tabasalu
Arhitekt/ Architect: Urmas Muru, Peeter Pere, Janek Maat (Muru & Pere Arhitektid)
www.vamp.ee
Sisearhitekt/ Interior Designer: Urmas Muru, Peeter Pere (Muru & Pere Arhitektid)
Projekt/ Design: 2002
Valmis/ Completed: 2004
Pindala/ Area: 211m²
040
Eramu Meriväljal, Ranniku teel/ Private residence in Merivälja on Ranniku Road
Arhitekt/ Architect: Emil Urbel, Indrek Erm (AB Emil Urbel)
www.emilurbel.ee
Sisearhitekt/ Interior Designer: Taso Mähar
Projekt/ Design: 2003
Valmis/ Completed: 2004
Pindala/ Area: 231m²
041
Eramu Lohusalus, Kanarbiku tänaval/ Private residence in Lohusalu on Kanarbiku Street
Arhitekt/ Architect: Ilmar Jalas
www.ilmar.ee
Sisearhitekt/ Interior Designer: Gert Nahkur
Projekt/ Design: 2003
Valmis/ Completed: 2004
Pindala/ Area: 150m²
042
Ribimaja Kangru külas/ Ribbed House in Kangru Village. Kiili
Arhitekt/ Architect: Urmas Muru, Peeter Pere, Janek Maat (Muru & Pere Arhitektid)
www.vamp.ee
Sisearhitekt/ Interior Designer: Aet Piel (Aet Piel Disain OÜ)
www.apdisain.ee
Projekt/ Design: 2002
Valmis/ Completed: 2004
Pindala/ Area: 180m²
043
Eramu Tabasalus, Kustavi tänaval/ Private residence in Tabasalu on Kustavi Street
Arhitekt/ Architect: Vahur Sova (Teigar Sova Arhitektid OÜ)
www.tsarh.ee
Sisearhitekt/ Interior Designer: Rain Pikandi
www.division.ee
Projekt/ Design: 2003
Valmis/ Completed: 2004
Pindala/ Area: 240m²
044
InBox. Eramu Rohuneemes, Valli teel/ InBox. Private residence in Rohuneeme on Valli Road
Arhitekt/ Architect: Markus Kaasik, Andres Ojari, Ilmar Valdur, Merje Müürisepp (3+1 Arhitektid)
www.threeplusone.ee
Sisearhitekt/ Interior Designer: Markus Kaasik, Andres Ojari, Ilmar Valdur, Merje Müürisepp, Maris Kerge (3+1 Arhitektid)
Projekt/ Design: 2001-2003
Valmis/ Completed: 2004
Pindala/ Area: 157m²
045
Eramu Lubja külas/ Private residence in Lubja Village, Viimsi
Arhitekt/ Architect: Tarmo Teedumäe (Arhitektuuriagentuur/ALLIANSS ARHITEKTID)
www.arhitektuuriagentuur.ee
www.allianss.eu
Sisearhitekt/ Interior Designer: Monika Löve (Arhitektuuriagentuur/ALLIANSS ARHITEKTID)
Projekt/ Design: 2003-2004
Valmis/ Completed: 2005
Pindala/ Area: 166m²
046
Eramu Pääskülas, Sambliku tänaval/ Private residence in Pääsküla on Sambliku Street. Tallinn
Arhitekt/ Architect: Emil Urbel, Indrek Erm (AB Emil Urbel)
www.emilurbel.ee
Sisearhitekt/ Interior Designer: Tiiu Truus
www.truus.ee
Projekt/ Design: 2004
Valmis/ Completed: 2005
Pindala/ Area: 215m²
047
InCity. Eramu Naeri tänaval/ InCity. Private residence on Naeri Street. Tallinn
Arhitekt/ Architect: Markus Kaasik, Andres Ojari, Ilmar Valdur, Kalle Komissarov, Merje Müürisepp (3+1 Arhitektid)
www.threeplusone.ee
Sisearhitekt/ Interior Designer: Markus Kaasik, Andres Ojari, Ilmar Valdur, Kalle Komissarov, Merje Müürisepp (3+1 Arhitektid)
Projekt/ Design: 2002-2005
Valmis/ Completed: 2005
Pindala/ Area: 203m²
048
Saadiku residents Lauri teel, Meriväljal/ Embassy residence in Merivälja on Lauri Road. Tallinn
Arhitekt/ Architect: Ado Eigi
Sisearhitekt/ Interior Designer: Tiiu Truus
www.truus.ee
Projekt/ Design: 2003
Valmis/ Completed: 2005
Pindala/ Area: 592m²
049
Eramu Maarjamäel, Kase tänaval/ Private residence in Maarjamäe on Kase Street. Tallinn
Arhitekt/ Architect: Reio Avaste (AB Eek & Mutso)
www.eekmutso.ee
Sisearhitekt/ Interior Designer: Anu Habakukk
Projekt/ Design: 2004
Valmis/ Completed: 2005
Pindala/ Area: 223m²
050
Palkmaja Hiiumaal, Tahkuna külas/ Log House in Tahkuna Village, Hiiumaa
Arhitekt/ Architect: Laila Põdra
Sisearhitekt/ Interior Designer: Laila Põdra, perekond/family Jaaksoo
Projekt/ Design: 2003
Valmis/ Completed: 2005
Pindala/ Area: 55m²
051
Villa U Nõmmel, Kalda tänaval/ Villa U in Nõmme on Kalda Street. Tallinn
Arhitekt/ Architect: Indrek Unt, Gert Sarv, Lauri Laisaar (FRONT Arhitektid)
Sisearhitekt/ Interior Designer: Indrek Unt, Gert Sarv, Lauri Laisaar (FRONT Arhitektid)
Projekt/ Design: 2003
Valmis/ Completed: 2005- 2006
Pindala/ Area: 350m²
052
Eramu Merirahus/ Private residence in Merirahu. Tallinn
Arhitekt/ Architect: Andres Põime (AB Studio 3)
www.studio3.ee
Sisearhitekt/ Interior Designer: Liina Ainomäe
Projekt/ Design: 2004-2005
Valmis/ Completed: 2006
Pindala/ Area: 226m²
053
Eramu pankrannikul, Ilmandu külas/ Villa on a cliff in Ilmandu Village
Arhitekt/ Architect: Enn Rajasaar (AB JVR)
www.jvr.ee
Sisearhitekt/ Interior Designer: Tiiu Truus
www.truus.ee
Projekt/ Design: 2003
Valmis/ Completed: 2006
Pindala/ Area: 280m²
054
Betoonmaja Veskimöldres, Laaniku tänaval/ Concrete house in Veskimöldre on Laaniku Street. Tallinn
Arhitekt/ Architect: Andres Alver (Alver Arhitektid OÜ)
www.ata.ee
Sisearhitekt/ Interior Designer: Andres Alver ja omanikud/ in cooperation with client
Projekt/ Design: 2002
Valmis/ Completed: 2006
Pindala/ Area: 592m² (kasulik pind/ useful area 410 m²)
055
Suvemaja Soorinnal/ Summer house in Soorinna
Arhitekt/ Architect: Tõnu Laigu, Kadri Kerge (QP Arhitektid)
www.qparh.ee
Sisearhitekt/ Interior Designer: Mari Kurismaa
Projekt/ Design: 2004
Valmis/ Completed: 2006
Pindala/ Area: 123m²
056
Eramu Pringi külas, Pilliroo tänaval/ Private residence in Pringi village on Pilliroo Street. Viimsi
Arhitekt/ Architect: Ülar Mark, Indrek Tiigi, Kaiko Kivi, Kai Kuusik (AB Urban Mark |
ALLIANSS ARHITEKTID)
www.urbanmark.ee
www.allianss.eu
Projekt/ Design: 2004-2005
Valmis/ Completed: 2006
Pindala/ Area: 231m²
057
Villa Harjumaal Andineemel/ Villa in Andineeme, Harju County
Arhitekt/ Architect: Vahur Sova (Teigar Sova Arhitektid OÜ)
Sisearhitekt/ Interior Designer: Aita Teigar (Teigar Sova Arhitektid OÜ)
www.tsarh.ee
Projekt/ Design: 2003-2005
Valmis/ Completed: 2006
Pindala/ Area: 298m²
058
Villa Suurupis Välja teel/ Villa in Suurupi on Välja Road
Arhitekt/ Architect: Raul Vaiksoo (AB Raul Vaiksoo)
www.raulvaiksoo.ee
Sisearhitekt/ Interior Designer: Raul Vaiksoo, Krista Aren (AB Raul Vaiksoo)
Projekt/ Design: 2004
Valmis/ Completed: 2006
Pindala/ Area: 230m²
059
Villa Lokaator Paldiskis/ Villa Locator in Paldiski
Arhitekt/ Architect: Siiri Vallner, Indrek Peil (Head Arhitektid OÜ)
Sisearhitekt/ Interior Designer: Indrek Peil, Siiri Vallner ja omanik/ in cooperation with client
Projekt/ Design: 2004
Valmis/ Completed: 2007
Pindala/ Area: 197m²
060
Must maja Kiilis/ Black residence in Kiili
Arhitekt/ Architect: Ralf Lõoke (AB Salto)
www.salto.ee
Sisearhitekt/ Interior Designer: Pille Lausmäe (Pille Lausmäe SAB)
www.plsab.ee
Projekt/ Design: 2005
Valmis/ Completed: 2007
Pindala/ Area: 220m²
061
Eramu Viimsis, Mäekünka teel/ Private residence in Viimsi on Mäekünka Road
Arhitekt/ Architect: Eero Palm, Kristiina Ott (AB Palm-E)
www.palm-e.ee
Sisearhitekt/ Interior Designer: Kadi Kõpper, Heli Aade
Projekt/ Design: 2006
Valmis/ Completed: 2007
Pindala/ Area: 257m²
062
Eramu Vismeistris, Vaalu tänaval/ Private residence in Vismeistri on Vaalu Street. Tallinn
Arhitekt/ Architect: Margus Pilter (AB Pilter ja Taras)
Sisearhitekt/ Interior Designer: Hillar Mänd
Projekt/ Design: 2005-2006
Valmis/ Completed: 2007
Pindala/ Area: 284m²
063
Maja Muraste pangapealsel/ House on a cliff in Muraste
Arhitekt/ Architect: Ralf Lõoke (AB Salto)
www.salto.ee
Sisearhitekt/ Interior Designer: Ville Lausmäe (VL Sisearhitektuur), Ralf Lõoke (SALTO)
www.vls.ee
Projekt/ Design: 2005
Valmis/ Completed: 2007
Pindala/ Area: 200m²
064
Maakodu Purdi külas/ Country home in Purdi Village
Arhitekt/ Architect: Sten Ader (SKAD Arhitektid OÜ)
www.skad.ee
Sisearhitekt/ Interior Designer: Helene Schilf
Projekt/ Design: 2006
Valmis/ Completed: 2007
Pindala/ Area: 89m²
065
Alumiiniummaja Rannamõisas/ Aluminium house in Rannamõisa
Arhitekt/ Architect: Urmas Muru, Peeter Pere (Muru & Pere Arhitektid)
www.vamp.ee
Sisearhitekt/ Interior Designer: Urmas Muru, Peeter Pere, Katrin Kaevats (Muru & Pere Arhitektid)
Projekt/ Design: 2005
Valmis/ Completed: 2007
Pindala/ Area: 266m²
066
Eramu Kakumäel, Silgu tänaval/ Private residence in Kakumäe on Silgu Street. Tallinn
Arhitekt/ Architect: Indrek Järve, Aivo Schults (Schults & Partnerid)
Sisearhitekt/ Interior Designer: Kristiina Vooglaid
www.impro.ee
Projekt/ Design: 2005
Valmis/ Completed: 2007
Pindala/ Area: 202m²
067
Betoonmaja Suurupis, Ida teel/ Concrete house in Suurupi on Ida Street
Arhitekt/ Architect: Madis Eek (AB Eek & Mutso)
www.eekmutso.ee
Projekt/ Design: 2003
Valmis/ Completed: 2007
Pindala/ Area: 210m²
068
Valge maja Nõmmel, Metsanurga tänaval / White house in Nõmme on Metsanurga Street. Tallinn
Arhitekt/ Architect: Martin Aunin (EA Reng AS)
www.eareng.ee
Sisearhitekt/ Interior Designer: Kaire Kemp-Tišler
Projekt/ Design: 2006
Valmis/ Completed: 2007
Pindala/ Area: 406m²
069
Eramu Pärnumaal, Uulu külas/ Private residence in Uulu Village, Pärnumaa
Arhitekt/ Architect: Andres Alver (Andres Alver Arhitektid)
www.ata.ee
Projekt/ Design: 2005
Valmis/ Completed: 2007
Pindala/ Area: 176m²
070
Konsoolelamu Pirital/ Cantilivered residence in Pirita, Tallinn
Arhitekt/ Architect: Hindrek Kesler (AB Zero)
Sisearhitekt/ Interior Designer: Hindrek Kesler (AB Zero)
Projekt/ Design: 2002
Valmis/ Completed: 2007
Pindala/ Area: 126m²
071
Villa HR Põdrakanepi teel/ Villa HR on Põdrakanepi Street. Tallinn
Arhitekt/ Architect: Andri Kirsima (Arhitektuuriüksus OÜ)
www.arhitektuuriyksus.ee
Sisearhitekt/ Interior Designer: Pille Tael
Projekt/ Design: 2004
Valmis/ Completed: 2007
Pindala/ Area: 242m²
072
Eramu Kuressaares, Videviku tänaval / Private residence in Kuressaare on Videviku Street. Saaremaa
Arhitekt/ Architect: Raivo Kotov, Andrus Kõresaar (KOKO)
www.koko.ee
Projekt/ Design: 2004
Valmis/ Completed: 2007
Pindala/ Area: 250m²
073
Talu Jõgisool/ Farm in Jõgisoo
Arhitekt/ Architect: Jaak Huimerind
Projekt/ Design: 2002-2003
Valmis/ Completed: 2007
Pindala/ Area: 250m²
074
Villa Tabasalus, Madise teel/ Villa in Tabasalu on Madise Road
Arhitekt/ Architect: Tiit Trummal (Tiit Trummal Arhitektid)
Sisearhitekt/ Interior Designer: Tiit Trummal, Lily Rikkonen
Projekt/ Design: 2006
Valmis/ Completed: 2007
Pindala/ Area: 190m²
075
Villa Meriväljal/ Villa in Merivälja, Tallinn
Arhitekt/ Architect: Toomas Tammis, Inga Raukas, Tarmo Teedumäe (Arhitektuuriagentuur/ALLIANSS ARHITEKTID)
www.arhitektuuriagentuur.ee
www.allianss.eu
Sisearhitekt/ Interior Designer: Monika Löve (Arhitektuuriagentuur)
Projekt/ Design: 2002-2004
Valmis/ Completed: 2007
Pindala/ Area: 385m²
076
Eramu Varju tänaval, Kuressaares/ Private residence on Varju Street in Kuressaare
Arhitekt/ Architect: Kiira Soosaar
www.kiirasoosaar.ee
Projekt/ Design: 2006
Valmis/ Completed: 2008
Pindala/ Area: 200m²
077
Eramu Merirahus/ Private residence in Merirahu, Tallinn
Arhitekt/ Architect: Kristel Ausing, Andres Siim (AS Siim & Kreis)
Sisearhitekt/ Interior Designer: Tüüne-Kristin Vaikla, Urmo Vaikla (Vaikla Stuudio OÜ)
www.vaiklastudio.ee
Projekt/ Design: 2006
Valmis/ Completed: 2008
Pindala/ Area: 460m²
078
Golfimaja Jõelähtmel/ Golfing house in Jõelähtme
Arhitekt/ Architect: Andres Siim (AS Siim & Kreis)
Sisearhitekt/ Interior Designer: Juta Lember
Projekt/ Design: 2007
Valmis/ Completed: 2008
Pindala/ Area: 280m²
079
Eramu Rohuneemes, Sääre teel/ Private residence in Rohuneeme, Sääre Road
Arhitekt/ Architect: Margus Maiste (Maiste Proge OÜ)
Sisearhitekt/ Interior Designer: Liis Lindvere (KOKO)
www.koko.ee
Projekt/ Design: 2005
Valmis/ Completed: 2008
Pindala/ Area: 345m², kasulik pind/ useful area 275m²
080
Eramu Rocca al Mares, Loigu tänaval/ Private residence in Rocca al Mare on Loigu Street. Tallinn
Arhitekt/ Architect: Raul Vaiksoo (AB Raul Vaiksoo)
www.raulvaiksoo.ee
Sisearhitekt/ Interior Designer: Raul Vaiksoo, Krista Aren (AB Raul Vaiksoo)
Projekt/ Design: 2007
Valmis/ Completed: 2009
Pindala/ Area: 430m²
081
Maja Heldri külas/ Residence in Heldri Village. Viimsi
Arhitekt/ Architect: Ott Kadarik, Villem Tomiste, Mihkel Tüür (AB Kosmos)
www.kosmoses.ee
Sisearhitekt/ Interior Designer: Mari Koger
www.boom.ee
Projekt/ Design: 2003
Valmis/ Completed: 2008
Pindala/ Area: 171m²
082
Villa Draiver Kuressaares/ Villa Draiver in Kuressaare. Saaremaa
Arhitekt/ Architect: Terje Truumaa (Ösel Plan OÜ)
Sisearhitekt/ Interior Designer: Terje Truumaa (Ösel Plan OÜ)
Projekt/ Design: 2007
Valmis/ Completed: 2008
Pindala/ Area: 160m²
083
Vaskvilla Võrus/ Copper Villa in Võru
Arhitekt/ Architect: Karmo Tõra (ROK-Projekt OÜ)
www.rokprojekt.ee
Sisearhitekt/ Interior Designer: Terje Kivist, Hillar Mänd
Projekt/ Design: 2006
Valmis/ Completed: 2008
Pindala/ Area: 330m²
084
Eramu Viitnal, Loobu külas/ Private residence in Viitna in Loobu Village
Arhitekt/ Architect: Raul Vaiksoo (AB Raul Vaiksoo)
www.raulvaiksoo.ee
Sisearhitekt/ Interior Designer: Raul Vaiksoo (AB Raul Vaiksoo)
Projekt/ Design: 2006
Valmis/ Completed: 2008
Pindala/ Area: 210m²
085
Eramu Suurupis/ Private residence in Suurupi
Arhitekt/ Architect: Urmas Muru, Peeter Pere, Anna-Maria Erik (Muru & Pere Arhitektid)
www.vamp.ee
Projekt/ Design: 1998, ümberehitus/ reconstruction: 2006-2008
Valmis/ Completed: 1999, ümberehitus/ reconstruction: 2009
Pindala/ Area: 172m², ümberehitusega/ after reconstruction: 302m²
Sisearhitekt ümberehitusel/ Interior Designer during reconstruction: Kaido Kivi, Igor Volkov
www.kiviprojekt.ee
086
Villa Keila-Joal, Meremõisa külas/ Villa in Keila-Joa in Meremõisa Village
Arhitekt/ Architect: Andres Alver (Alver Arhitektid OÜ)
www.ata.ee
Sisearhitekt/ Interior Designer: Maile Grünberg, Eliina Grünberg
Projekt/ Design: 2007
Valmis/ Completed: 2009
Pindala/ Area: 701m² (kasulik/useful area 450 m²)
087
Eramu Merirahus/ Private residence in Merirahu. Tallinn
Arhitekt/ Architect: Veronika Valk, abiline/ Assistant Kadri Klementi (OÜ Zizi&Yoyo)
www.ziziyoyo.com
Sisearhitekt/ Interior Designer: Veroonika Valk, abiline/ Assistant Kadri Klementi (OÜ Zizi&Yoyo) + omanik/ client
Maastikuarhitekt/ Landscape Designer: Merilen Mentaal Projekt
Projekt/ Design: 2007
Valmis/ Completed: 2009
Pindala/ Area: 269m²
088
Eramu Meriväljal/ Private residence in Merivälja. Tallinn
Arhitekt/ Architect: Toomas Tammis (Arhitektuuriagentuur/ALLIANSS ARHITEKTID)
www.arhitektuuriagentuur.ee / www.allianss.eu
Sisearhitekt/ Interior Designer: Andres Labi, Janno Roos (Ruumilabor)
www.ruumilabor.ee
Projekt/ Design: 2006-2007
Valmis/ Completed: 2009
Pindala/ Area: 350m²
089
Eramu Nõmmel Vanemuise tänaval/ Private residence in Nõmme on Vanemuise Street. Tallinn
Arhitekt/ Architect: Madis Eek (AB Eek & Mutso)
www.eekmutso.ee
Sisearhitekt/ Interior Designer: Anu Habakukk ja omanikud/ in co-operation with client
Projekt/ Design: 2006
Valmis/ Completed: 2009
Pindala/ Area: 307m²
090
Vaskmaja Murastes, Kivimaa tänaval/ Copper house in Muraste on Kivimaa Street
Arhitekt/ Architect: Margus Tamm
Sisearhitekt/ Interior Designer: Liia Elo, Armas Elo
Projekt/ Design: 2007
Valmis/ Completed: 2009
Pindala/ Area: 293m²
091
Betoonmaja Pärnus, Kaarli puiesteel/ Concrete house on Kaarli Avenue. Pärnu
Arhitekt/ Architect: Andres Alver, Sven Koppel, Tarmo Laht, Ulla Saar (Andres Alver Arhitektid OÜ)
www.ata.ee
Sisearhitekt/ Interior Designer: Kaire Kemp-Tišler, Ulla Saar, Sven Koppel
Projekt/ Design: 2007
Valmis/ Completed: 2009
Pindala/ Area: 395m² (kasulik/useful area 320m²)
092
Must maja Kakumäel, Säina tänaval/ Black house in Kakumäe, Säina Street. Tallinn
Arhitekt/ Architect: Rein Murula (AB Rein Murula OÜ)
Sisearhitekt/ Interior Designer: Hugo Mitt
Projekt/ Design: 2007
Valmis/ Completed: 2009
Pindala/ Area: 107m²
093
Villa Nord Aseris/ Villa Nord in Aseri
Arhitekt/ Architect: Maarja Kask, Karli Luik, Ralf Lõoke (AB Salto)
www.salto.ee
Sisearhitekt/ Interior Designer: Maris Kerge
Projekt/ Design: 2006
Valmis/ Completed: 2009
Pindala/ Area: 300m²
094
Eramu Merirahus/ Private residence in Merirahu. Tallinn
Arhitekt/ Architect: Lembit-Kaur Stöör, Ülo-Tarmo Stöör (KOKO)
www.koko.ee
Sisearhitekt/ Interior Designer: Liis Lindvere, Raili Paling (KOKO)
Projekt/ Design: 2006
Valmis/ Completed: 2009
Pindala/ Area: 450m²
095
Betoonmaja Meriväljal, Vahtramäe teel/ Concrete house in Merivälja, Vahtramäe Street. Tallinn
Arhitekt/ Architect: Andres Lember (Male maja OÜ)
www.male.ee
Sisearhitekt/ Interior Designer: Aet Grigorjev (PINK)
www.pink.ee
Projekt/ Design: 2007
Valmis/ Completed: 2010
Pindala/ Area: 325m²
096
Suvemaja Hiiumaal, Puliste külas/ Summerhouse in Hiiumaa in Puliste Village
Arhitekt/ Architect: Tiit Trummal (Tiit Trummal Arhitektid)
Sisearhitekt/ Interior Designer: Tiit Trummal ja omanik /in cooperation with client
Projekt/ Design: 2008
Valmis/ Completed: 2010
Pindala/ Area: 152m²
097
Must maja Nõmmel, Valguse tänaval/ Black house in Nõmme on Valguse Street. Tallinn
Arhitekt/ Architect: Martin Aunin (EA Reng AS)
www.eareng.ee
Sisearhitekt/ Interior Designer: Kaire Kemp-Tišler
Projekt/ Design: 2007
Valmis/ Completed: 2010
Pindala/ Area: 410m²
098
Villa RA Kilu tänaval/ Villa RA on Kilu Street. Tallinn
Arhitekt/ Architect: Gert Sarv (AB November)
Sisearhitekt/ Interior Designer: Gert Sarv, Raina Lillepõld-Gaydon
Projekt/ Design: 2008
Valmis/ Completed: 2010
Pindala/ Area: 265m²
099
Eramu Nõmmel, Edu tänaval/ Private residence in Nõmme, Edu Street. Tallinn
Arhitekt/ Architect: Tiit Trummal (Tiit Trummal Arhitektid)
Sisearhitekt/ Interior Designer: Tiit Trummal (Tiit Trummal Arhitektid)
Projekt/ Design: 2009
Valmis/ Completed: 2010
Pindala/ Area: 295m²
100
Eessõna
2010. aastal osaleb Eesti Veneetsia arhitektuuribiennaalil
näitusega „100 MAJA / HOUSES“, seades enesele ühe
selge eesmärgi – viia kohalik arhitektuuripraktika laiema
vaatajaskonna ette ning tutvustada Eesti arhitektuurielu
läbi ühe kitsama valdkonna – eramuarhitektuuri.
Osalemine Veneetsia arhitektuuribiennaalil on võimalus
tuua laiema publiku ette oma värskemad, aktuaalsemad,
kriitilisemad ja parimad ideed. Siit ammutatakse globaalse
arhitektuurielu uusimad probleempüstitused ja võetakse
kokku olulisimad nähtused.
Veneetsia XII rahvusvahelise arhitektuuribiennaali
üldkuraator Kazuyo Sejima on oma sõnavõtus märkinud,
et 2010. aasta biennaal peaks olema arhitektuurist,
sellest, kuidas inimesed arhitektuuriga kokku puutuvad
ja suhestuvad: „/…/ sellest näitusest saab arhitektuursete
võimaluste kogemus, näitamaks, kuidas arhitektuur
väljendab uusi elamisvõimalusi ning on loodud erinevate
vaatenurkade ning lähenemiste teel. /…/ Ideeks on aidata
inimestel suhestuda arhitektuuriga, aidata arhitektuuril
suhestuda inimestega ning aidata inimestel suhestuda
teineteisega.“
Inimene kohtub arhitektuuriga ehitatud keskkonnas.
Kogemus arhitektuurist on osaks igapäevaelust,
jagunedes mitmete sfääride ja vastandite vahel: avalik/
privaatne, füüsiline/virtuaalne või näiteks moodne/
klassikaline. Üks esmatasandeid arhitektuuri kogemiseks
on elukeskkond, millest saadav isiklik impulss puudutab
kõiki inimesi. Elamu on ikka olnud moodsa arhitektuuri
üks lemmikteemasid, illustreerides oma kompaktsuses
ja samas keerukuses inimeste suhet keskkonnaga ja
selle kujundamise viisi. Eramu loomine omakorda on
üheks intiimseimaks arhitektuurivormiks, kus tellija
suhe loodavaga on lahutamatu. Elamuarhitektuur oma
mitmetahulisuses tõstatab palju küsimusi, peegeldades
elavalt ühiskonda ning selle toimemehhanisme.
Kuid miks eramud? Miks peaks just Eesti
eramuarhitektuur olema siinsest praktikast esile tõstetud
ja kõnetama vaatajaid veenvamalt kui ülejäänud
ehituskunst? Kas on võimalik, et eramuarhitektuur
võtab kokku hoovad, mis tõstavad 1,3-miljonilise
rahvaarvuga väikeriigi suurtest naabritest „kõrgemale“?
Eramuid on siinses arhitektuurikirjanduses hellitlevalt
„eesti arhitektuuri kvaliteedimärgiks“ kutsutud. Siinne
ehituspraktika erineb suurel määral ülejäänud Euroopast
eritellimuste ja tüüpprojektide suhtarvu poolest. Eesti
ekspositsiooni ette valmistades sai üheks eesmärgiks
Foreword
In 2010, Estonia is participating at the Venice Biennale of
Architecture with an exposition entitled 100 HOUSES, and
has thereby set a clear goal for itself – to present local
architectural practices to a wider audience and introduce
Estonian architectural life through the narrow sphere of
private residential architecture. Participation in the Venice
Biennale of Architecture provides the opportunity to
present our freshest, most topical, critical and best ideas
to a wider audience. The most current problems of global
architectural life are thereby established and the most
important phenomena are summarized. .
Kazuyo Sejima, the general curator of the exhibition,
has said that the 2010 Biennale should be about how
people and architecture come in contact and relate,
“This exhibition will be an experience of architecture
possibilities, to understand how architecture expresses
new ways of living, about an architecture created by
different values and approaches. /…/ “The idea is to help
people relate to architecture, help architecture relate to
people and help people relate to themselves”.
Architecture is encountered by people throughout the
built-up environment. The experience of architecture
is part of everyday life, divided between many spheres
and contrasts: public/private, physical/virtual and
modern/classical. One of the initial stages in the
experience of architecture is the life environment, which
provides personal impulses that affect everyone. The
private residence has always been a favorite topic for
modern architecture, illustrating in its compactness and
simultaneous complexity, people’s relationships with their
environment and the way to shape it. The creation of
private residences is also one of the most intimate forms
of architecture, in which the client’s relationship with that
which is being created is indivisible. Private residential
architecture with it multifaceted nature raises many
questions by graphically reflecting the society and its
operational mechanisms.
But why private residences? Why should the emphasis
be placed on Estonia’s residential architecture and why
should it speak to the viewers more convincingly than
other type of architecture? Is it possible that residential
architecture summarizes all the currents that raise this
small country, with a population of only 1.3 million,
“higher” than its large neighbors? In local architectural
literature, private residences have repeatedly been
affectionately called “the quality mark of Estonian
tuua välja nn kataloogimajade ja unikaalprojekti põhjal
valminud eramute vaheline suhtarv. Taoline eesmärk
osutus aga võrdlemisi keerukaks, sest puudub vastav
ametlik statistika. Nii Eestis kui ka mujal Euroopas on
võimalik välja võtta statistiline näitaja ehitusprojektide ja
kasutuslubade väljastamise kohta, kuid kas ehitusluba
on antud tüüp- või eriprojekti põhjal, seda andmestik ei
täpsusta. Seetõttu pöördusime oma küsimuses erinevate
Eesti linnaarhitektide poole, et saada teada asjaga
otseselt seotud inimeste erialast hinnangut.
Eesti tulemuseks oli väga väike tüüpprojektide osakaal.
Võib oletada, et vaid kuni 10% siinsetest eramutest on nn
kataloogimajad. Ei saa küll üldistada, et ülejäänud 90%
esindab absoluutset esmaklassilist eramuarhitektuuri,
kuid niivõrd suurest kogusest tõuseb siiski esile
arvestatav hulk kvaliteetset ehituskunsti. See näitab
selgelt ära eestlaste suhtumise kodu loomisesse. Oma
maja ehitatakse ideega, et see peab kestma põlvest
põlve, eramu projekteerimisega on seotud suured
ootused ja ideaalid. Aastakümnete jooksul põhjalikult
väljaarendatud tüüpprojektide-turu rõngas on aga mitmed
Skandinaaviamaad. Kataloogimaju eelistav käitumine
peegeldab tunduvalt pragmaatilisemat suhtumist. Eramu
on turukaup, sellel peab olema ka arvestatav järelväärtus
turul, et maja saaks võimalik kiirelt, mugavalt ning
vastavalt „keskmisele maitsele“ müüa. Eestlane on sellega
võrreldes tunduvalt alalhoidlikum ja suhtub oma maja
ehitusse rohkem isiklikust maitsest lähtudes.
Selleks, miks Eestis valmib rahvaarvu ja ehitustegevust
aluseks võttes niivõrd suur hulk unikaalprojekti põhjal
eramuid, on mitmeid põhjuseid. Noore ühiskonnana on
siin tegutsemas palju noori arhitekte, kellel on võrreldes
vanemate Euroopa riikidega olnud lihtsam tööturule
siseneda, samuti on palju noori tellijaid, kes on valmis
eksperimenteerima, olles vabamad stampettekujutustest
ja -soovidest. Märkimisväärsena saab välja tuua, et
raamatusse valitud sajast eramust on projekteerimise
hetkel vähemalt pooled tehtud alla 40-aastaste arhitektide
poolt. Eritellimuste kasuks räägib ka ühekülgne ja noor,
veel täielikult väljaarenemata tüüpmajade turg.
Eesti eramuehituse oluliseks iseloomustajaks on ka
kultuuriline eripära ja järjepidevus, mis sai alguse noore
vastloodud vabariigi ideaalidest ja oma rahvusest noorte
arhitektide kasutamisega 1920.-30. aastatel, jätkus
kultuurilise vastandumisena nõukogude-perioodil ning sai
uue hoo taasiseseisvunud riigis, kus unikaalse eramaja
omamine sai ühtmoodi reklaamitud nii ideaalelu mudeliks,
turukaubaks kui ka eksperimenteerimispinnaks. Nagu
võib lugeda Triin Ojari artiklist, pole Eestis ilmselt kunagi
räägitud nii palju kinnisvaraärist, kodukujundusest,
ümberehitamisest ja kõigest muust eluasemega
seonduvast kui viimase kümne aasta jooksul.
architecture”. Local building practices differ greatly
from the rest of Europe in terms of the proportion of
special commissions and standardized projects. While
preparing the Estonian exposition, one of the objectives
became to highlight the ratio between the number of
“catalogue houses” and residences based on specially
commissioned projects. Achieving this goal turned out
to be relatively complicated due to the lack of relevant
official statistics. In Estonia and elsewhere in Europe, it is
possible to obtain statistical data regarding the number
of building projects and occupancy permits, but the
data does not specify whether the permits were issued
for buildings based on standardized or custom projects.
Therefore, we approached various city architects in
Estonia in order to gather the professional opinions of the
people who deal directly with the issue.
The result in Estonia was a very small percentage of
standardized projects. One can surmise that only about
10% of local private residences are “catalogue houses”.
Of course, one cannot assume that the remaining 90%
represent absolutely first-class residential architecture,
but a considerable number of high-quality architecture
still emerges from such a large number of projects.
However, this clearly indicates the attitude of Estonians
toward the creation of their homes. One builds a house
with the idea that it will last for generations; great
expectations and ideals are tied to the design of a private
residence. In the course of several decades, several
Scandinavian countries have become encompassed
by a very developed market of standardized projects.
The preference of catalogue houses to special projects
demonstrates a much more pragmatic attitude compared
to Estonians. Private residences are market goods and
they must have appreciable resale value so that houses
can be sold quickly and convenient and satisfy “average
tastes”. In comparison, Estonians are considerably more
conservative and relate to the construction of their houses
on a more personal basis.
There are many reasons why there are such a large
number of specially commissioned residences in Estonia
based on the population and construction activity. As a
young society, there are many young architects working
here, for whom it is simpler to enter the labor market than
in the older European countries. At the same time, there
are also many young clients who are ready to experiment,
who are free of clichéd concepts and wishes. It is worth
noting that of the hundred residences included in this
book, at least half were designed by architects who were
under 40 at that time that the buildings were designed.
Private commissions are also encouraged by the onesided,
young and still totally undeveloped standardized
housing market.
Eesmärgiga näidata eramuarhitektuuri ajaloolist
järjepidevust ja unikaalset positsiooni kohalikus
arhitektuurielus, on raamatusse ja näitusele valitud saja
eramu hulgas ka valik ikoonilisema tähendusega eramuid
esimese Eesti Vabariigi perioodist ning nõukogude
ajajärgust. Põhirõhk on aga asetatud 21. sajandile,
luues esmakordselt niivõrd mahuka ülevaate Eesti
eramuarhitektuuri paremikust. Seetõttu saab raamatut
vaadelda kui visiitkaarti, mis suunatud väljapoole Eesti
arhitektuuri reklaamimiseks, kuid teisalt ka kogumikku
meile endile, peegeldades arenguid ja otsinguid parema
elukeskkonna poole. Oluline on täheldada, et suure
majanduskasvu tingimustes on tänaseks valminud kriitiline
hulk eramuid, mis annab üleüldse võimaluse niivõrd
mastaapseks vahekokkuvõtteks. Raamatu ja näituse
ettevalmistamiseks tutvusid autorid sadade erinevate
eramutega üle Eesti, saades nii võimaluse kaalutletud
valikuks. Teema sügavamaid tagamaid ning seoseid
Põhjamaade ning ajalooga avavad raamatus ilmuvad
kaks artiklit, mille autoriteks on arhitektuuriteadlane ja
arhitektuuriajakirja „Maja“ peatoimetaja Triin Ojari ning
arhitektuuriajaloolane Carl-Dag Lige.
Näituse autorid Kalle Vellevoog, Tiiu Truus, Martin Pedanik
ja Karen Jagodin soovivad tänada toetuse ja abi eest
Eesti Kultuurkapitali, Eesti Kultuuriministeeriumi ning Eesti
Arhitektuurikeskust. Samuti suured tänusõnad kõikidele
arhitektidele, fotograafidele ja maja omanikele, kelle
kaasabita oleks sadat eramut hõlmavat projekti olnud
võimatu vedada.
Karen Jagodin
näituse kuraator ja raamatu toimetaja
Another noteworthy aspect of Estonian private residential
construction is its distinct cultural nature and continuity.
This got its start from the utilization of the ideals of
the young, newly established republic by young local
architects in the 1920s and 30s, continued as a cultural
contrast during the Soviet period, and gained new
momentum in the re-independent state, where the
ownership of a unique home also became a model of the
advertised ideal of life, a market commodity and grounds
for experimentation. As Triin Ojari says in her article,
“Probably, never before in Estonia have the real estate
business, home decorating, renovation and everything
else related to one’s home been discussed as much as
they have during the last ten years.”
In order to demonstrate the historical continuity and
unique position of private residential architecture in the
local architectural scene, the book and exhibition includes
private residences with special iconic meaning from
the period of the first Estonian Republic and the Soviet
era. However, the main emphasis is placed on the 21st
century, thereby creating such a voluminous overview
of the best of Estonian residential architecture for the
first time. Therefore, the book can be viewed as a calling
card, which is directed outward as an advertisement
for Estonian architecture, but also as a collection for us
that records developments and the pursuit of a better
human environment. It is also important to note that
great economic growth created the conditions for the
building of a critical number of residences that provides
the opportunity for such a large-scale interim summary.
During the preparation of the book and exhibition, the
authors familiarized themselves with hundreds of different
private residences throughout Estonia, thereby gaining
the opportunity to make a well-considered selection. The
deeper background of the topic and connections to the
Nordic countries and history are explored in two articles –
one is authored by Triin Ojari, architectural scholar and
editor-in-chief of the architectural magazine, Maja, and the
other by architectural historian Carl-Dag Lige.
The authors of the exhibition Kalle Vellevoog, Tiiu Truus,
Martin Pedanik and Karen Jagodin wish to thank the
Cultural Endowment of Estonia, Estonian Ministry of
Culture and the Estonian Centre of Architecture for
their support and help. Sincere thanks also go to all the
architects, photographers and homeowners without
whose help it would have been impossible to manage a
project that involves one hundred residences.
Karen Jagodin
Editor and Exhibition Curator
Eesti eramajad:
kolm vaadet
Triin Ojari
Kui Eesti 2000. aastal esimest korda Veneetsia
arhitektuuribiennaalil osales, oli teemaks „Simulacrum
City“ – apoteoos siinse sündiva linnakeskkonna näivusele
ja simuleerimiskunstile, kollaažlik fotoprojekt Tallinna
kihtidest, lappidest ja aukudest, mis kõik mähitud uuest
kapitalistlikust korrast ajendatud õnneuima. Klaasmajad,
kõrghooned, hiidreklaamid… Nüüd, kümme aastat hiljem,
on skaala väiksem, vaatepunkt sihitud madalamale ja
konkreetsemale, urbanistlikust simulatsiooniutoopiast
on saanud lugu privaatsest ja oma originaalsuses
elitaarsest eramajast. Eesti esitab “päris”-eramud oma
vormiesteetika, maitsenüansside ja kapriisidega. 100
maja nii, nagu nad on. Aga seda magusam on nood
“parimatest parimad” kodud pihtide vahele võtta, rääkida
neist kui ühiskonna peeglitest või siis kui etappidest
Eesti kontekstis jätkuvalt nii olulise vormiesteetika
arengus. Ja ehkki näitusel jääb prevaleerima puhas vorm
ja elust äralõigatud ilu, on kaasaja eramu vältimatult
urbanistlik nähtus, sotsiaalsetesse ja infrastruktuursetesse
võrgustikesse haaratud sõlm. Järgnevalt mõned
vaatepunktid sõlmede lahti harutamiseks.
Sümptomaatiline maja
Kahtlemata on ehitatud keskkond hea alus mõistmaks
ühiskonna meelsust, inimeste argikäitumist,
väärtushinnanguid ja lõppeks riigi ruumipoliitikat. Ütle
mulle, kus sa elad, ja ma tean, kes sa oled… Ilmselt pole
Eestis kunagi nii palju kinnisvaraärist, kodukujundusest,
ümberehitamisest ja kõigest muust eluasemega
seonduvast räägitud kui viimase kümne aasta jooksul.
Eelkõige pealinna Tallinnasse, aga ka teistesse linnadesse
ehitati sadu uusi kortermaju, kinnisvaraäri kasvas käsikäes
pankade laenukampaaniatega, hinnanguliselt 30 000
inimest kolisid nelja-viie buumiaastaga Tallinnast välja
tühjadele põldudele rajatud uuselamurajoonidesse – jalad
sai alla Eesti oma suburbia.
Eramaja on läbi aja olnud moodsa arhitektuuri
lemmik, omamoodi katselabor. Eestis saame
rääkida Teise maailmasõja eelsest tugevast
funktsionalismitraditsioonist, hiljem nõukogudeaegsest
vastandumisest kehtivale massiühiskonnale privaatruumi
originaalsuse abil. Ja loomulikult vaba ja ülbe uus
iseseisvusaeg, mil eramajast äärelinnas sai ühteaegu nii
turukaup, reklaamitud ideaalelu mudel kui vaba pinnas
eksperimenteerimiseks. Kas viimase kümne aastaga
Estonia’s Private Residences:
Three Views
Triin Ojari
When Estonia first participated in the Venice Biennale of
Architecture in 2000, the theme was “Simulacrum City” –
an apotheosis of simulation art and the visual aspects
of the urban environment that was then being created
here – a collage-like photo project comprising Tallinn’s
layers, patches and gaps, all wrapped in the intoxication
of happiness prompted by the new capitalist order. Glass
houses, high-rise buildings, giant advertisements…
Now ten years later, the scale is smaller, and the view is
directed at things that are lower and more concrete. An
urbanistic simulation utopia has become a story of private
residences that are elitist in their originality. Estonia is
displaying “real” private residences with their esthetics of
form, nuances of taste and whims. One hundred houses,
as they really are. Therefore it is all the sweeter to cast a
critical eye on these homes, which are the “best of the
best”; to speak of them as the mirrors of society or as
stages in the development of the esthetics of form, which,
in the Estonian context, continues to be so important.
Moreover, although pure form and isolated beauty
prevails at the exhibition, the contemporary residence
is inevitably an urbanistic phenomenon, a knot of social
and infrastructural networks. The following are some
viewpoints for unraveling these knots.
A symptomatic house
Undoubtedly, the built-up environment is a good basis
for understanding the mentality of a society, people’s
everyday behavior, values, and also the government’s
spatial policies. Tell me where you live and I know who
you are… Probably, never before in Estonia, have the
real estate business, home decorating, renovation and
everything else related to one’s home been discussed as
much as they have during the last ten years. Hundreds
of new apartment buildings have been built – primarily
in the capital of Tallinn, but also in other cities. The real
estate business grew hand-in-hand with the banks’ loan
campaigns. In the course of four to five boom years, an
estimated 30,000 people moved out of Tallinn into new
residential developments that were built onto empty fields
– Estonia’s own suburbia was created.
Through time, private residences have been the favorites
of modern architecture, a kind of test lab. In Estonia,
we can speak of a strong, pre-World War II functionalist
tradition and using originality in one’s private space
kerkinud erakordselt rikkalik kogum originaalseid eramaju
on eestlaste majahaiguse sümptom, tunnus süvenevast
individualismist ning isikuvabadusest? Sümptomaatilised
majad ja diagnoositavad käitumismudelid? Siinsel
eramaja-kultusel on palju loogilisi põhjuseid – noore
ühiskonna noored tellijad ja arhitektid, nii projekteerijate
kui ka majakruntide taskukohane hind, ühekülgne
tüüpmajade turg, omavalitsuste vabameelne (kohati
ennasthävitav) planeerimispoliitika ning lõdvad
ettekirjutused elamurajoonide osas, lisaks ilmselt mitmed
n-ö kultuurilisest käitumisest tulenevad eelistused,
sealhulgas näiteks harjumus tellida arhitektilt, olla kursis
kaasaegse ehitustegevusega, “läänelike” ruumistandardite
ja vormiliste eeskujude olulisus jne. Üldiselt üksikule
liikudes võiks öelda, et Eesti eramu on kõige laiemalt
siinse neoliberaalse majanduspoliitika vili, ja kitsamalt,
erialasiseselt võttes alles kujunemisjärgus olevate
vormikaanonite paljususe tulem. Noore riigi sünd ja
siinse elukeskkonna kujunemine 1990. aastate lõpul ning
uue sajandi alul jäi perioodi, mil kogu maailm revideeris
oma seni tugevat riiklikku ehituspoliitikat, mil globaalse
majanduse toel tugevnev erakapital hõivas aina uusi
positsioone nii linnaplaneerimises kui arhitektuuris ning
imidžiloomele keskendunud meediamaailm mõjutas nii
arhitekti staatust, ehituskunsti vormilisi tõekspidamisi
kui ka vau!-efekti ihalevat linnamajandust rohkem kui
kunagi varem. Liberalismi põhimõteteks on klassikaliselt
peetud individuaalset autonoomiat, turumajanduse
pidamist tõhusaimaks ühiskondliku korralduse vahendiks
ning mittesekkuvat riiki. Rahvusriik on oma hoobasid
lõdvendanud ja delegeerinud mitmed kohustused
allpool asetsevatele võimustruktuuridele, sh suuresti
majanduslikule eliidile. Eestist, buumiaastatel end
Ida-Euroopa tiigriga võrrelda armastanud riigist, sai
neoliberaalne unistustemaa, mille investeerimissõbralik
kliima baseerus jõulisel riiklike varade mahamüümisel
ning Skandinaavia pankade laenurahal. Tallinnas kui
kõige suuremas ja olulisemas keskuses on nende aastate
jooksul märgata kolmandatki liberalismiga kaasnevat
sümptomit – linnapoliitika eesmärgiks on saanud
mobiliseerida linnaruum kui turumajandusliku kasvu
areen, linnaruumi käsitletakse eelkõige (kinnisvara)ärina.
Juba eelpool mainitud tugev suburbaniseerumine on
enesestmõistetavalt selle äri ühekülgsuse parimaid näiteid –
ehituskruntide või juba hoonestatud majabokside
müük ilma kohustuseta rajada maanteid või sotsiaalset
infrastruktuuri, ilma linnapoolsete analüüsideta
valglinnastumise mõjudest või hoopis alternatiivist
tihendada kesklinna.
Seega on üsna lihtne tõmmata siduv joon siinse
kirjeldatud liberalistliku maailmamudeli ja eramajade
buumi vahele. Viiskümmend aastat nõukogude süsteemi,
mis nullis eraehituse pea täielikult ja kolis kogu rahva nii
maal kui linnas mitmekordsetesse paneelmajadesse, jättis
to contrast with the mass society of the Soviet era. Of
course, there is also the free and arrogant period of
restored independence, when a private house in the
suburbs became a market commodity, an advertised
model of the ideal life, as well as an empty space for
experimenting. Is the exceptionally rich collection of
private residences that have been built in the last ten
years a symptom of the Estonians’ house sickness, or a
sign of increased individualism and personal freedom?
Are they symptomatic houses or diagnosable behavioral
models? There are many logical reasons for the private
house cult – the young clients and architects of a young
society, the affordability of designers and building lots,
a lopsided market of standardized houses, the broadminded
(sometimes self-destructive) planning policies
of local governments, as well as the lax regulation
of residential areas. In addition, there are apparently
many preferences that are based on so-called “cultural
behavior”, including the habit of working with an
architect, being up to date on modern building trends,
the importance of “Western” space standards and formrelated
models, etc. Moving from the general to the
specific, one could say that, in the broadest sense, the
Estonian private residence is the fruit of local neoliberal
economic policies, while viewed more narrowly, in
the professional sense it could be seen to result from
the multitude of form canons, which are still in the
developmental stage. The birth of the young nation and
development of the local human environment at the
end of the 1990s and the beginning of the new century,
occurred during a period when the entire world was
revising its hitherto strong governmental building policy,
and when, with the support of the global economy,
private capital was increasingly assuming new positions
in both urban planning and architecture. At the same
time, the media world, which was focused on image
creation, had a greater than ever influence on the status
of the architect, the spatial dogmas of the buildings
arts, as well as the urban economy that craves the wow!
effect. The keystones of liberalism have classically been
considered to be individual autonomy, the belief and
that a market economy is the most efficient means of
social organization and the state should interfere as
little as possible. The nation-state has releases its levers
and delegated many of its obligations to lower ranking
power structures, including to a great extent to the
financial elite. Estonia, which loved to portray itself as an
East European tiger during the boom years, became a
neoliberal dreamland, with an investment-friendly climate
that was based on the vigorous sale of national assets
and loan money from Scandinavian banks. During those
years, a third symptom of liberalism was also detectable
in Tallinn – the largest and most important center. The
goal of urban policy became the mobilization of urban
space as an arena for the growth of the market economy,
endast maha ääretu nõudluse kaasaegse eluaseme järele.
Lisaks oli toonane linna koondunud ehitustegevus jätnud
põllumaaks ka vägagi linna lähedal asuvad vabad alad.
Kinnisvaraäri sai hoo sisse 1990. aastate lõpul: esialgu
üksikute, aia ja tõkkepuuga piiratud elamurajoonide
näol, mida hoolimata odavatele kataloogimajadele
häbenematult Eesti eliidi unistuste kodurajooniks
nimetati; hiljem tuli massiline kruntide müük vabadusega
ehitada sinna sisuliselt milline maja tahes, veelgi hiljem,
kuumadel buumiaastatel kerkisid suburbiasse juba suured
kortermajad ja tihedad ridamajade read. Nii arendajate
ärikasum kui ka inimeste arusaam äärelinna võludest
ja valudest kasvas võrdelise kiirusega. Halvustavad
väljendid äärelinna põldudele rajatud “pappmajadest”
ja “lollideküladest” on hoogu saanud eriti nüüd, paar
aastat pärast hullumeelseid ehitusaastaid, mil inimesed
nimetatud aastatel linnaga toimunule kriitilisemalt tagasi
vaatavad.
Lääne kolleegid on siinset ehitustegevust ja arhitektide
tegutsemisvabadust vaadates seda tihti stiihiaks või siis
eksperimentaalseks laboratooriumiks nimetanud – võibolla
kord saja aasta jooksul avanevaks võimaluseks
kasutada ära valitsevat reguleerimatust ning individuaalset
vabaduseiha. Võib-olla väga lähedalt vaadates,
valitud eramajades loodud arhitektuurseid vorme ja
ruumilisi minikeskkondi jälgides ongi see potentsiaal
maksimumilähedaselt realiseerunud – muu hulgas pole
vähetähtis siin asjaolu, et reeglina on need majad n-ö
endale ehitatud, hoolikalt läbimõeldud rätsepatöö –,
laiemas linnaehituslikus plaanis on domineeriv erasektori
mõjuvõim paraku jätnud nende aastate jooksul selge
jälje ärilisest kasumlikkusest, mitte teadlikust soovist
luua inimesi ja arhitektuuri uudsel ja demokraatlikul moel
ühendavast avalikust ruumist.
Moodsad majad
Ülesehitatavale riigile omast uudsuseiha ning oma selge
(arhitektuurse) vormikaanoni puudumist võib tõlgendada
ka väga lihtsalt soovina olla moodne. Soov läänt
jäljendada, ammutada eeskujusid klassikaks muutunud
arhitektuurist ja kujundusvõtetest – aga ka mitte
kaugemalt kui 1920.-1930. aastate modernism –
on seletatav nii Eesti geograafilise kuulumisega lihtsa
elegantsi poolest tuntud Põhjamaade kultuuriruumi kui ka
noore ühiskonna alateadliku sooviga kas alustada täiesti
puhtalt lehelt ja nullida kogu eelnev arhitektuurne leksikon
kui iganenud või siis äärmisel juhul vaadata tagasi
eelmisesse iseseisvusaega ja tunnistada 1930. aastate
funktsionalistlik arhitektuurikeel meie arhitektuurseks
inimõiguseks.
Tänases Eesti elamuehituses on nn valge modernism
väga populaarne: arhitektide veendumuse kohaselt
on see and urban space was treated primarily as a (real estate)
business. The vigorous suburbanization mentioned
above is obviously one of the best examples of the onesidedness
of this business – the sale of building lots or
house shells without the obligation to build roads or social
infrastructure, without any analysis by the city of the
impact of the urban sprawl or the densification of the city
center as an alternative.
Therefore, it is quite simple to draw a connective line
between the liberal world model described here and the
boom of private residential construction. Fifty years of the
Soviet system, which almost completely destroyed private
building and moved the entire nation into multi-storied
panelized houses in the country and the city, left behind
a pent-up demand for modern dwellings. In addition,
the fact that at that time construction activity was
concentrated in the cities, left expanses of empty space
adjacent to the cities. The real estate business got its start
at the end of the 1990s – initially in the form of solitary
residential areas surrounded by fences and barriers
that, regardless of their inexpensive catalogue houses,
were shamelessly called the Estonian elites’ dream
neighborhoods. Later, the large-scale sale of building lots
was accompanied by the freedom to essentially build any
kind of house you like. And even later, during the hottest
boom years, large apartment buildings and dense rows of
attached houses started to be built in suburbia. Thus, the
developers’ financial profits and people’s understandings
of the charms and pains of life on the outskirts of the city
increased with proportional speed. Disparaging remarks
about the “cardboard houses” and “villages of fools”
built on the suburban fields have become more frequent.
Especially now, when a few years has elapsed since the
crazy construction years, and people are looking back
critically at the events in the city during the intervening
years. .
Observing the local construction activity and the
architectural freedom, Western colleagues often describe
it as wantonness or an experimental laboratory. As an
opportunity that occurs maybe once in a hundred years
to take advantage of the prevalent disorganization and
individual desire for freedom. Perhaps, by making a close
examination, by examining the architectural forms and
spatial mini-environments that were created in selected
private residences, we can see that this potential may
even been realized close to the maximum. Here, we
should note that it is not unimportant that these houses
are “custom-built”, carefully considered tailoring jobs –
unfortunately during these years, the dominant impact
of the private sector left a clear imprint of financial
profitability in the broader town planning context, rather
than a conscious desire to create people and architecture
in a fresh and democratic way from a connective public
space.
stiil “ennast juba tõestanud”, kinnisvaraarendajatele sobib
lihtsavormiliste majade ökonoomne ehitusviis ning rajooni
lihtne ühtlane ilme. Ka kultuuriline taust on soodus –
moodsad majad ongi juba esimesest iseseisvusajast
saadik need “meie omad”, noore riigina ning
Skandinaaviaga sarnaneda tahtjatena on uusmodernismi
esteetika (lihtsus) ja moraal (tagasihoidlik konservatism)
meie jaoks õiged. Tellijate ambitsioone on keerulisem
kaardistada, enamik originaalprojekti tellijaist teevad
arhitektivaliku teadlikult, n-ö käekirjaga kursis olles.
Kui 1920. aastate Euroopas oli küsimus veel vähestes
unikaalsetes villades – tellijate varanduslikku seisu ja
ühiskondlikku positsiooni arvestades sai rääkida eliidi
arhitektuurist ja eksklusiivsest maitseotsustusest –, siis
kaasajal on valitute asemel tegu massiga, innovatiivsusele
viitav žest on asendunud paikaloksunud märksüsteemiga.
Moodne, ent mitte liiga pealetükkiv ega originaalne.
Vormikeel, mis kinnisvaraäri paisudes üksikuist villadest
tunduvalt madalamasse hinnaklassi ja tervete rajoonideni
jõudis.
Loomulikult on valgete majade esteetika lahutamatult
seotud meediaga. Kuidas ja mida me moodsaks peame,
kuidas kujunevad meie maitse-eelistused, millest me
unistame – kõik see maailm on suures osas meie jaoks
“toodetud”, konstrueeritud. Aina enam räägitakse
kaasaegse elamustööstuse tähtsusest ning arhitektuur,
sisekujundus ja disain on selle olulised osad – erialad,
mille unikaalsus ning eristumine sobituvad orgaaniliselt
personaalsust ning üksiolemist kultiveerivasse ühiskonda.
Meediasõltlastena tarbime meile pakutavat kuvandit
moodsast elukeskkonnast, usume ajakirjakodude
igavesse puhtusse ja sätitud mööblivalikusse ning
globaalne tarbimispaine paneb meid ka oma kodudes
kriitiliselt ringi vaatama, uuendusi tegema – enam valgust
ja moodsust!
Maastikmajad
Kazyo Sejima tõstatab tänavuse arhitektuuribiennaaliga
People meet in architecture vana küsimuse: kas
arhitektuur suudab peegeldada kaasaega kogu
oma uudsuses ja seda selgemaks teha? Ta usub,
et arhitektuuril on suur roll inimestevaheliste suhete
kujundamisel ning arhitektuuri ootab ees samasugune
sõltumatu vabadus, mis on omane kaasaegsele kultuurile
tervikuna.
Sellise arhitektuuri võtmesõnaks on nii koha kui ka
nõutud programmi kriitiline analüüs, selle uuendamine
nn virtuaalse masina ehk diagrammi abil – need majad
ei mahuta pelgalt funktsionaalseid tegevusi, vaid on
ülesehitatud ruumikogemusele, liikumise suunamisele,
uue kvaliteedi tekitamisele. Moodne elu näib üha vähem
vajavat spetsiifilist ruumilist vormi ning kesta –
Modern houses
The desire for novelty typical of a developing country and
the lack of a clear (architectural) canon can simply be
interpreted a wish to be modern. The wish to imitate the
West, to absorb the examples of classical architectural
and design techniques – but no further back than the
modernism of the 1920s and 30s – can be explained by
Estonia’s geographical affiliation with the Nordic cultural
space, which is know for its simple elegance; also by the
young society’s unconscious wish to start from a totally
clean slate and eliminate the entire old and outdated
architectural lexicon; or in the extreme case, to look back
to the previous period of independence and acknowledge
the functionalistic language of architecture in the 1930s as
our architectural human right.
In residential construction in Estonia today, “white
modernism” is very popular – architects believe that
this style has “already proven itself” and the economical
methods used to build houses that have simple forms
suit the real estate developers, as do the simple
uniform appearance of the developments. The cultural
background is also favorable – modern houses have been
“our own” since the first period of independence, and the
esthetics (simplicity) and moral (modest conservatism)
of new modernism are perfect for a new nation that
aspires to be similar to Scandinavia. The ambitions of the
clients are more complicated to map out. The majority
of the clients for original designs choose their architects
knowingly, i.e. they are aware of their “signature”. In the
Europe of the 1920s, we were dealing with a few unique
villas. Based on the clients’ financial status and social
position, one could speak of the architecture of the elite
and decisions based on exclusive tastes. However, today,
instead of the chosen few, we are dealing with the masses
and the gesture toward innovation has been replaced by a
well-established system of symbols. Modern, but not too
obtrusive or original. A language of form that arrived at a
considerably lower price level as the real estate business
expanded and covered entire regions.
Naturally, the media is inexorably linked to the esthetics
of the white houses. How we decide what is modern,
and what we consider to be modern, how our taste
preferences develop, and what we dream of – this
entire world is greatly “produced” or constructed for us.
Increasingly, one speaks of the importance of the modern
experience industry, and an important role is played by
architecture, interior decoration and design – professions
that produce uniqueness and contrasts and are
organically reconciled with a society that cultivates
individuality and solitude. As media addicts, we consume
the images of the modern human environment that is
proffered to us. We believe in the eternal cleanliness and
majanduslikud tasuvusajad on lühikesed ja ühiskonna
ning tehnoloogia areng kiire. Igasse projekti on kätketud
annus määratlematust. Paljude tegurite arvestamise ja
analüüsi tulemusel sündiv arhitektuur võib olla lihtsam
või keerulisem, ta võib rõhuda inimtaju erinevatele
meeltele või suhestuda kriitiliselt ruumiprogrammilistesse
tõekspidamistesse, tuues ehitistesse ja keskkonda
lokaalset jõudu ning eripära. See on arhitektuur, mis
raamistab, ta ei püüa midagi määratleda ega paika
panna, vaid suunab liikumisi, sündmusi, elu. Mida enam
määratlemata nišše, ruume, seda tõenäolisemalt sünnib
sellest “uue” ruumi kvaliteet, tekivad uued eluvormid.
Mitte juhuslikult pole üks erialasiseseid lemmiktermineid
“maastik” – arhitektuur kui katkematult kulgev pind,
sündmustemaastik –, mis viitab tärganud soovile sarnaselt
maastikukujundajaga hõlmata protsesse, aktsepteerida ja
koordineerida ruumis toimuvaid muutusi.
Arhitektuur – ja eramud sealhulgas – loovad ja kujundavad
nii inimeste omavahelisi suhteid kui ka inimeste seost
ruumiga. Arhitektuuri kvaliteet ei peitu selles, et ta
väljendab reaalsust, vaid vastupidi – tema võimes äratada
meie kujutlusvõime.
perfect furniture arrangements of the magazine homes,
and the global pressure to consume makes us view our
own homes critically, to make improvements – more light
and modernity!
Landscape houses
At this year’s Biennale of Architecture, which is entitled
“People Meet in Architecture”, Kazuyo Sejima raises an
old question: Can architecture reflect the present day in all
its originality, and clarify it? She believes that architecture
has a large role to play in shaping relations between
people, and architecture can expect to achieve the same
independent freedom that is typical of contemporary
culture as whole.
The key to this type of architecture is the critical analysis
of both the location and required program, and its
updating with the help of a “virtual machine” or diagram.
These houses not only accommodate functional activities,
but are based on spatial experiences, the direction of
movement, and the creation of a new level of quality.
Modern life seems to require fewer specific spatial forms
and shells – financial payback periods are short and the
society and technology are developing rapidly. Every
project conceals a dose of indefinability. Architecture that
is based on considering many factors and the results of
analysis may be simple or complicated; it may depend on
the various senses of human perception or relate critically
to the beliefs of the spatial program by bringing local vigor
and particularity to the buildings and environment. This
is architecture that frames; it does not try to determine
or put anything in place, but directs movement, events
and life. The greater the number of undefined niches and
spaces, the more probably that a “new” spatial quality will
be born, and new forms of life will develop.
Therefore, it is not accidental that one of the favorite
words in the profession is “landscape” – architecture as
an unbroken surface; a landscape of events, which refers
to the burgeoning wish, to involve processes, similarly to
a landscape designer, as well as to accept and coordinate
the changes that are taking place in the space.
Architecture – and private residences among them –
create and shape the relationships between people, as
well as people’s relationships with space. The quality of
architecture is not hidden in the fact that it conveys reality,
but rather in its ability to arouse our imagination.
Standard vs Eksperiment:
eramuarhitektuurist Eestis ja
Põhjamaades
Carl-Dag Lige
Nüüdisaegne professionaalne eramuarhitektuur on
kõrgelt hinnatud nii Eestis kui Põhjamaades. Kuid
kui Põhjamaades on laialdaselt levinud majatehaste
standardiseeritud lahendused ja arhitektide käest
tellitakse suhteliselt vähe unikaalprojekte, siis Eestis on
kogu taasiseseisvumise järgsel ajal unikaalprojektiga
eramute ehitus suhteliselt populaarne olnud.
Eestis ehitatavate kataloogimajade arhitektuurne ja
ehituskvaliteet on suhteliselt kesine ning seepärast on
enamik siinsetest professionaalsetest arhitektidest kuni
viimaste aastateni hulgaliselt eramuprojektide tellimusi
saanud. Uus Eesti eramuarhitektuur annab läbilõikelise
ülevaate tendentsidest kogu taasiseseisvumisjärgses
kohalikus arhitektuuripraktikas.
Kui Põhjamaade elamuarhitektuuris domineerib suhteliselt
alalhoidlik lähenemine, mis keskendub eelkõige tellija
soovidele ning rõhutab kontekstitundlikkust, siis eesti
arhitektide seas tõuseb ühe tugeva suunana esile
eksperimenteeriv hoiak. Noorte arhitektide seas, kelle
loominguline käekiri võib välisilmelt olla variatiivne, võib
tajuda teravdatud tähelepanu arhitektuuridistsipliini
olemuse ja toimimise suhtes. Eesti eksperimentaalne
eramuarhitektuur toob ilmekalt esile siinsete
arhitektide kriitilise hoiaku ja soovi ümber mõtestada
arhitektuuridistsipliini toimemehhanisme.
I Standard
Kataloogimajad Põhjamaades ja Eestis
Standardiseeritud elamuehituse üheks pioneeriks
Euroopas võib pidada Soomet. Sealsete elanike hulgas
on standardsed kataloogimajad olnud populaarsed
juba aastakümneid, sest enamasti on majatehaste poolt
pakutavate toodete näol tegemist vastupidavate ning
funktsionaalsete hoonetega. Arvestades ka soomlaste
mõõdukalt konservatiivset eluhoiakut, pole imekspandav,
et valdav osa riigis ehitatavatest eramutest valmib
tüüpprojekti alusel. Selliste majade arhitektuurne tase
on tänaseks langenud keskpärasusse, kuigi varasematel
aegadel on tüüpprojektidega tegelenud ka Soome
arhitektuuriloo edunimi, Alvar Aalto. Eestis valitseb
tänaseks aga erinev olukord, kus kataloogimajade
arvukus jääb selgelt alla arhitektide eriprojektidele. Eesti
tellija hindab unikaalset ja isikupärast kodu ning otsustab
suhteliselt harva standardse tüüpmaja kasuks.
Standardized vs. Experimental:
About Private Residential Architecture
in Estonia and the Nordic Countries
Carl-Dag Lige
Present-day professional residential architecture is
highly valued in Estonia as it is in the Nordic countries.
However, if factory-built standardized solutions are very
popular in the Nordic countries and relatively few unique
projects are commissioned from architects, in Estonia
the construction of private residences based on unique
projects has been relatively popular throughout the
period of re-independence. In Estonia, the architectural
and structural quality of catalogue houses is relatively
mediocre, and therefore, the majority of local professional
architects have received a large number of commissions
for private residential projects. The new Estonian
residential architecture provides a cross-section of the
trends of local architectural practice since the restoration
of independence.
If a relatively conservative approach is dominant in Nordic
residential architecture, which focuses primarily on the
wishes of the client and emphasizes sensitivity to the
context, one of the strongest trends among Estonian
architects is an experimental attitude. Among young
architects, whose creative handwriting may be variative
on the outside, one can perceived a sharp focus on the
nature and functioning of the architectural discipline.
Estonian experimental residential architecture vividly
demonstrates the critical attitude of the local architects
and their wish to rethink the operational mechanisms of
the architectural discipline.
I Standardized
Catalogue houses in the Nordic countries and Estonia
Finland is considered to be one of the European
pioneers of standardized private residential construction.
Standardized catalogue houses have been popular among
the Finnish population already for decades, because most
factory-built buildings are durable and functional. Also
considering the moderately conservative tastes of the
Finns, it is not surprising that most private residences that
are built in the country are based on standard designs.
The architectural quality of such houses has fallen into
mediocrity, although earlier also Alvar Aalto, the pioneer
of Finnish architectural success story, has worked with
typical designs. There is a different situation on that
matter in Estonia, where the number of catalogue houses
is clearly lower than the number of unique designs.
Nii nagu Soome majatehaste poolt pakutavad
tüüplahendused, on ka Eesti firmade kataloogimajad –
niipalju kui neid üldse pakutakse – suhteliselt madala
arhitektuurse kvaliteediga. Samas on Eestis selles osas
näha paranemise märke. Hiljuti (2009) sai Eesti Aasta
Puitehitise preemia arhitekt Sten Ader, kes on loonud
puidust väikemajade moodulsüsteemi, mille arhitektuurne
kvaliteet on võrreldav unikaalprojektide järgi ehitatavate
eramutega.1
II Eksperiment
Maja kui masin
Arhitektuursete eksperimentide suhtes on
eramuarhitektuur oma väikese mõõtkava tõttu vastutulelik.
Uuenduslikke ideid on odavam, turvalisem ja lihtsam
katsetada väikeses mahus. Eksperimenteerimist soosivad
tihtipeale ka ekstravagantsed ja väga iseteadlikud
tellijad või elamunäitused. Nii Le Corbusier kui ka
temast mõjutatud Arne Jacobsen on projekteerinud
omalaadseid elamise masinaid. Nendes on eksponeeritud
ja tutvustatud moodsaid tehnoloogiaid ja esemeid
elektrilisest põrandaküttest automaatse garaažiukseni.
Jacobsen projekteeris ringikujulise põhiplaaniga maja
kaasaegsele inimesele ning ühendas hoone planeeringuliste,
vormiliste ja tehnoloogiliste võtete abil moodsa, urbaanse
eluviisi funktsionaalse ja sümboolse poole.2
Soome arhitekt Jyrki Tasa ja eestlased Urmas Muru ja
Peeter Pere kuuluvad nende nüüdisarhitektide hulka,
kes arendavad tänapäevaste vahenditega Le Corbusier’,
Jacobseni ja vene konstruktivistide laadis käsitlust majast
kui elamise masinast. Nii Tasa projekteeritud Moby Dick
house (2003)3 kui Muru & Pere Alumiiniummaja (2005)4 on
plastilise, voolava vormiga ehitised. Moby Dick house’i
tehnitsism väljendub ainulaadses teraskonstruktsioonis,
mis oli vajalik hoone paigutamiseks graniitkalju-nõlvakule.
Muru & Pere eramu masinlikkus seevastu väljendub
alumiiniumplekk-fassaadides ning hoone vormis, mille
spiraalne dünaamika on võrreldav Arne Jacobseni Tulevik
maja omaga. Moby Dick house seisab eneseteadlikult
kaljunõlval, Alumiiniummaja seevastu paikneb männisalus.
Hoolimata oma masinlikkusest ja konstruktiivsest
loogikast üritavad need hooned loodusele vastandumise
asemel sellega kontakti astuda ega jäta muljet looduse
demonstratiivsest alistamisest.
Ökoloogiline arhitektuur
Professionaalse ökoehituse ühed alusepanijad on
norralased. Juba vahetult peale II maailmasõda ehitati
Norras erineva suurusega hooneid, mis katsetasid nii
säästlikke ehitustehnoloogiaid kui ka alternatiivsete,
hoonesse integreeritud energiaallikate kasutamist.
Ökoehitusest ja säästlikust arhitektuurist on alles viimaste
Estonians prefer unique and individual homes and rarely
choose catalogue houses for their homes.
Catalogue houses that are produced by local companies
in Estonia are like the typical solutions offered by the
Finnish house factories, with relatively low architectural
quality. However, the first signs of improvement are
appearing in this field. Recently (2009), the Estonia’s
Annual Wooden Structure Award was presented to
architect Sten Ader, who created a module system for
small houses, the architectural quality of which is not
inferior to the products offered in the factory-built housing
catalogues and housing fairs of Northern Europe.1
II Experimental
A house as a machine
Due to its small dimensions, private residential
architecture is very well-suited to architectural
experimentation. It is less expensive, safer and simpler to
test innovative ideas in small volumes. Extravagant and
self-confident clients or housing exhibitions often promote
experimentation. Le Corbusier and Arne Jacobsen,
who was strongly influenced by Le Corbuiser’s work,
designed machines for living. Modern technologies and
features, such as electrical floor heating and automatic
garage doors, were displayed and introduced. Jacobsen
designed a house with a circular floor plan for modern
people, and with the help of methods related to planning,
form and technology connected the building to the
functional and symbolic side of the modern and urban
lifestyle.2
Finnish architect Jyrki Tasa and Estonians Urmas Muru
and Peeter Pere are among the contemporary architects
that are using present-day means to develop the idea of
houses as machines for living similarly to Le Corbusier,
Jacobsen and the Russian Constructionists. Thus the
Moby Dick House (2003)3 designed by Tasa and the
Aluminum House (2005)4 designed by Muru & Pere are
structures with flexible and flowing forms. The technicism
of the Moby Dick House is expressed in its unique steel
construction, which is necessary for the installation of
the building on the slope of a granite cliff. On the other
hand, the mechanical nature of the Muru & Pere house is
expressed by its aluminum facades and the form of the
building, the spiral dynamics of which are comparable
to those of Arne Jacobsen’s House of the Future. The
Moby Dick House stands self-knowingly on the side
of the cliff, while the Aluminum House is located in a
pine grove. Regardless of their mechanical nature and
constructivist logic, these buildings try to communicate
with nature rather than contrast with it and do not exhibit
a demonstrative subjugation of nature.
aastatega kujunenud nähtused, mis aeglaselt, kuid
järjepidevalt suurendavad oma mõju Eesti ehituskultuuris.
Ökoloogiline arhitektuur, mis sobitub konteksti ning
kasutab taastuvaid energiaallikaid, looduslikke
materjale ning traditsioonilisi ehitustehnoloogiaid, on
Eestisse jõudnud viimase kümnendi jooksul. Eesti
professionaalsetest arhitektidest on traditsiooniliste
ehitusmeetodite ja looduslike materjalide vastu teiste seas
huvi tundnud Laila Põdra. Tema poolt Hiiumaale suvilaks
projekteeritud palkmaja puhul väärib tähelepanu eelkõige
palkide kasutusviis. Arhitekt on kasutanud traditsioonilist
tappimisviisi, mida rakendati ka vanade taluhoonete
ehitustel. Traditsioonilise vormikeelega, kuid äratuntavalt
moodne suvila sobitub hästi looduslikku konteksti ja
ümbritsevasse maastikku. Viimastel aastatel on Eestis
levima hakanud ka savikrohv-kattega põhuplokkidest
elumajad, kuid nende arhitektuurne tase ei küündi veel
kuigi kõrgele.
Kriitiline arhitektuur
Iga ehitise projekteerimisel tuleb arvestada nii sotsiaalkultuurilise,
majanduslik-poliitilise kui ka geograafilise/
topograafilise kontekstiga. Teadlikkus erinevatest
mõjuteguritest võimaldab neile konkreetsete ideede,
arhitektuursete lahendustega vastata. Kvaliteetses
arhitektuuris põimuvad omavahel lähtekontekstide
loominguline tõlgendamine, funktsiooni, konstruktsiooni
ja planeeringu terviklikkusest sündiv vormiline selgus ning
kõrge ehituskvaliteet. Kui hoone vastab neile printsiipidele,
siis on tegemist ehituskunsti teosega, mis ületab
oma lokaal-funktsionaalse tähenduse ning omandab
potentsiaali saada nii avaramate sotsiaal-kultuuriliste kui
ka arhitektuuridistsipliini siseste tähenduste kandjaks ja
loojaks.
Professionaalse eramuarhitektuuri suurim väärtus
seisneb arhitektuurse kvaliteedi kaudu väljenduvas
kriitilises funktsioonis. Kriitilisuse all pean eelkõige
silmas eneseteadlikkust, professionaalsust,
interpreteerimisvõimet, sellist hoiakut, mis järjekindlalt
küsib iseenda olemis-meelestuse järele –
kontseptuaalset ehituskunstipraktikat, mis on teadlik
enda toimemehhanismidest ning suudab iga üksikprojekti
puhul vabaneda oma senistest eelarvamustest. Selgemalt,
kriitilisus tähendab arhitektidepoolset järjepidevat
töömeetodite ümbervaatamist ning väärtussüsteemi
kohandamist konkreetse konteksti jaoks.
Liigne enesekriitilisus ja töömeetodite pidev kohandamine
võib halvemal juhul tulemuseks anda väga kollaažliku
arhitektuuri. Selleks, et suuta lähtekontekstide
vastastikuses pinges tekkivale arhitektuurile anda
ka selge arhitektuurne vorm ja luua arhitektuurselt
kvaliteetne tervik, on vaja väga andekaid arhitekte. Iga
Ecological architecture
The Norwegians are among the founders of professional
eco-building. Immediately after World War II, various sized
buildings were built in Norway that experimented with
energy-efficient construction technologies and the use of
alternative energy sources that were integrated into the
buildings.
Eco-building and energy-saving architecture have only
recently become phenomena that are slowly but surely
increasing their impact in Estonia’s building culture.
Ecological architecture that adjusts to the context
and uses renewable energy sources, natural materials
and traditional building technologies has arrived in
Estonia during the last decade. Laila Põdra is one of the
professional Estonian architects who are interested in
traditional building methods and natural materials. In the
case of the log building that she designed as a summer
house in Hiiumaa, the method for using the logs deserves
attention. The architect employed a traditional notching
method, which was also used in old farm buildings.
Despite its use of a traditional language of form, the
summer house is recognizably modern and fits well in to
the natural context and surrounding landscape. In recent
years, homes made of straw blocks covered with clay
plaster have started to appear in Estonia, but they are not
of high architectural quality.
Critical architecture
The socio-cultural, economic-political and geographic/
topographic context must be taken into consideration
when designing any structure. Awareness of these various
factors allows one to resolve them with specific ideas
and architectural solutions. In high-quality architecture,
the creative interpretation of the contextual points of
departure, the form-related clarity born of integrated
function, construction and planning, as well as highquality
construction combine to create first-rate
architecture. If a building corresponds to these principles,
we have a work of architecture that transcends the
context of local functionality and acquires the potential
to become a carrier and creator of socio-cultural
meanings, as well as meanings related to the discipline of
architecture.
The greatest value of professional private residential
architecture is in the critical function that is expressed by
the architectural quality. By criticism, I primarily mean selfawareness,
professionalism, and an interpretive ability,
an attitude that continually inquires about one’s naturedisposition
– the practice of conceptual architecture
that is aware of its own operating mechanism and with
each individual project is able to become free of itself
projekt on ainulaadne ning tingib vähemal või suuremal
määral tööprotsessi ja -meetodite loomuse. Eriti kehtib
see eramute puhul, sest valmiv hoone, mis piirangutest
hoolimata võib väljendada arhitekti eksperimenteerivat
vaimu, peab igakülgselt vastama konkreetse tellija
vajadustele.
3+1 arhitektide Naeri tänava maja Tallinnas ei
järgi agulitüpoloogiat, sest tegemist on luksusliku
ühepereelamuga lihtsate tööliselamute piirkonnas.
Samas tõlgendab see maja intelligentselt ümbritsevat
linnaruumilist konteksti – krundi suhteline suletus viitab
ümbritseva aguli kinnistele hoovidele ja kõrgetele
plankudele. Samas on hoovi sisemus hubane ja isiklik.
Privaatsusest saab luksus, sest hoone asub südalinnas.5
Siiri Vallneri ja Indrek Peili Villa Lokaator Suurupis lähtub
post-militaarsest kontekstist. See on elamu, mis kasutab
vana ehitussubstantsi minimaalselt, kuid saab endise
sõjaväeterritooriumi kaudu närvekõditava ja vastuolulise
uue tähenduskihistuse.6 Jüri Okase kavandatud Mardi talu
puhul polnud vana taluhoovi planeering arhitekti jaoks
mitte piiranguks, vaid potentsiaaliks. Okas interpreteeris
vana keskkonda intelligentsel, talle omasel lakoonilisel
ja ülimalt rafineeritud moel ning suutis luua samaaegselt
ülimalt moodsa ning traditsioonide ja keskkonnaga
arvestava arhitektuuriteose.7
Need kolm eramut on head näited kriitilisest arhitektuurist,
sest interpreteerivad oma konteksti ja loovad tähenduste
nihestamise abil uusi väärtusi. Need on iseloomulikud
näited arhitektuurist, mis on väga tihedalt seotud
oma lähtesituatsiooni ja ümbritseva kontekstiga, kuid
hoolimata nendest piirangutest lõppteostuse osas väga
moodsa arhitektuurikeelega, terviklikud oma vormilt ja
hea ehituskvaliteediga. Arvan, et selliseks arhitektuuris
väljenduvaks ruumitähenduste tõlgendamiseks on
võimelised ainult väga andekad arhitektid, loojad, kes iga
uue objekti puhul “alustavad nullist” ehk loobuvad oma
eelarvamustest. Kõik need juhtumid on näited tellija ja
arhitekti vahelisest heast koostööst, kus hea lõpptulemus
on sündinud jätkuvas dialoogis.
Ehitustegevus on Põhjamaades küll kordades aktiivsem
kui Eestis ning arhitektuuriloomingu variatiivsuski suurem,
kuid just kontseptuaalne ja kriitiline arhitektuur näib
olevat see, mida Eesti eramuarhitektuuris Põhjamaadega
võrreldes rohkem viljeletakse. Nõustugem Inga
Raukasega, kelle arvates on Eesti nüüdisarhitektuuri
ühe positiivse suunana täheldatav noorte arhitektide
katsetusjulgus, millel võiks ka rahvusvaheliselt kaalu olla.8
Eesti arhitektuuri suurima potentsiaalina rahvusvahelises
kontekstis näengi just siinsete noorte arhitektide julgust
ja võimet mõtestada ümber arhitektuuri kui distsipliini
sisemisi toimemehhanisme – pakkuda ja töötada välja
uusi meetodeid ja kontseptsioone ehitatud keskkonna
kujundamiseks.
of existing preconceptions. More specifically, criticism
means the continuous review of work methods and the
adjustment of the value system to the specific context by
architects.
In the worst case, excess self-criticism and the continual
adjustment of the work may result in very collage-like
architecture. In order to provide a clear architectural form
for the architecture that develops from the tension of the
contrasting contextual points of departure and to create
a high-quality architectural whole, very talented architects
are required. Every project is unique and to a greater or
lesser degree determines the nature of the work process
and methods. This is especially true in the case of private
residences, because a building is created, which despite
its restrictions can be an expression of the architect’s
experimental spirit, but must also conform to the needs of
the specific client in every possible way.
The house on Naeri Street in Tallinn created by 3+1
architects does not conform to the typology of a working
class neighborhood, since it is a luxurious single-family
home in an area of simple workers’ dwellings. At the same
time, the building intelligently interprets the surrounding
context of urban space – the relatively seclusion of the
lot refers to the closed yards and high fences of the
surrounding neighborhood. At the same time, the interior
of the yard is cozy and personal. Privacy becomes a
luxury since the building in located in the city center.5
The Villa Lokaator in Paldiski, designed by Siiri Vallner
and Indrek Peil, is based on a post-military context.
This dwelling makes minimum use of the substance of
the old construction, but through the military territory
acquires a spine-tingling and incompatible new layer of
meaning.6 In the case of the Mardi Farm designed by Jüri
Okas, the layout of the old farmyard was not a restriction
for the architect, but rather offered potential. Okas
interprets the old environment intelligently, in a laconic
and extremely refined way that is characteristic of him,
and he was able to simultaneously create an extremely
modern architectural work that takes traditions and the
environment into consideration.7
These three private residences are a good example of
critical architecture, because they interpret their context
and create new values by shifting meanings. These
are characteristic examples of architecture that is very
closely related to its situational points of departure
and surrounding context, but despite these restrictions
employs a very modern architectural language, is
complete in form with excellent construction. I believe that
only very talented architects, creators who approach each
new project from a “clean slate”, i.e. abandon their own
preconceptions, are needed for the interpretation of the
spatial meaning that is expressed in such architecture. All
these cases are examples of good cooperation between
1 http://www.easyhome.ee/et/ (vaadatud 28.04.2010)
2 Thau, Carsten & Vindum, Kjeld (2001) Arne Jacobsen. Danish Architectural
Press, Kopenhaagen, lk 46-52.
3 http://www.n-r-t.fi/moby.htm (vaadatud 18.04.2010)
4 Alumiiniummaja Harjumaal Rannamõisas. – Buum/Ruum: Uus Eesti
Arhitektuur. Koost. Pille Epner. Eesti Arhitektide Liit. Tallinn: 2009. Lk 286
– 287.
5 Eramu IN CITY Naeri tänaval Tallinnas.– Buum/Ruum: Uus Eesti
Arhitektuur. Koost. Pille Epner. Eesti Arhitektide Liit. Tallinn: 2009, lk 226-227.
6 Villa Lokaator Suurupis. – Buum/Ruum: Uus Eesti Arhitektuur. Lk 272-273.
7 Ojari, Triin. Majaraamat: 21. sajandi kodu. Solness. Tallinn: 2007.
8 Raukas, Inga. Buumiv Eesti arhitektuur. – Buum/Ruum: Uus Eesti
Arhitektuur. Lk 39.
the architects and the clients, where a good final result
has been born of an ongoing dialogue.
There is much more construction activity in the Nordic
countries than in Estonia and the variety of architectural
creation is also greater. However, it seems that in
Estonia more conceptual and critical approaches
are cultivated in private residential architecture than
it is in the Nordic countries. We can agree with Inga
Raukas, who believes that one of the positive trends in
modern Estonian architecture is the courage of young
architects to experiment, which could also have an
international significance.8 I see the courage of the
young local architects to be the greatest potential of
Estonian architecture in the international context along
with their ability to rethink internal working mechanisms
of architecture as discipline – to suggest and work out
new methods and concept for shaping the built-up
environment.
1 http://www.easyhome.ee/et/ (viewed on 28.04.2010)
2 Thau, Carsten & Vindum, Kjeld (2001) Arne Jacobsen. Danish Architectural
Press, Copenhagen, pp. 46-52.
3 http://www.n-r-t.fi/moby.htm (viewed 18.04.2010)
4 Aluminium House in Rannamõisa. – Boom/Room: New Estonian
Architecture. Ed. Pille Epner. The Union of Estonian Architects. Tallinn:
2009. pp. 286 – 287.
5 Private residence IN CITY on Naeri St. In Tallinn.– Boom/Room: New
Estonian Architeture..Ed. Pille Epner. Union of Estonian Architects. Tallinn:
2009, pp. 226-227.
6 Villa Lokaator Suurupis. – Boom/Room: New Estonian Architeture. pp. 272-273.
7 Ojari, Triin. House Book: the 21st Century Home.. Solness. Tallinn: 2007.
8 Raukas, Inga. Buumiv Eesti arhitektuur. – Buum/Ruum: Uus Eesti
Arhitektuur. Lk 39.
219
Aade, Heli 126
Aalto, Alvar 213
Ader, Sten 132, 214
Ainomäe, Liina 108
Allmann, Indrek 56
Alver, Andres 112, 142, 176, 186
Aren, Krista 120, 164
Aunin, Martin 38, 80, 140, 198
Ausing, Kristel 158
Avaste, Reio 102
Eek, Madis 46, 138, 182
Eigi, Ado 100
Elo, Armas 184
Elo, Liia 184
Erik, Anna-Maria 174
Erm, Indrek 76, 84, 96
Grigorjev, Aet 194
Grünberg, Eliina 176
Grünberg, Maile 176
Habakukk, Anu 46, 102, 182
Huimerind, Jaak 150
Jacobsen, Arne 214
Jacoby, Erich 4
Jalas, Ilmar 86
Johanson, Herbert 6
Järve, Indrek 136
Jürna, Tiit 26
Kaasik, Markus 30, 36, 92, 98
Kaasik, Veljo 22
Kadarik, Mart 50
Kadarik, Ott 166
Kaevats, Katrin 134
Karp, Raine 16
Kask, Maarja 190
Kemp-Tišler, Kaire 42, 140, 186, 198
Kerge, Kadri 114
Kerge, Maris 92, 190
Kesler, Hindrek 144
Kirsima, Andri 146
Kivi, Kaido 174
Kivi, Kaiko 116
Kivist, Terje 170
Klementi, Kadri 178
Koger, Mari 38, 80, 166
Komissarov, Kalle 98
Koppel, Sven 186
Kotov, Raivo 60, 148
Kruus, Martin 66
Kurismaa, Mari 40, 114
Kuusik, Kai 116
Kõpper, Kadi 126
Kõresaar, Andrus 60, 148
Künnapu, Vilen 32, 58, 64
Labi, Andres 180
Laht, Tarmo 186
Laigu, Tõnu 40, 114
Laisaar, Lauri 106
Lapin, Leonhard 20
Lausmäe, Pille 124
Lausmäe, Ville 130
Le Corbusier 214
Lember, Andres 194
Lember, Juta 160
Lillepõld-Gaydon, Raina 70, 200
Lindvere, Liis 162, 192
Luik, Karli 190
Luisk, Tarmo 56
Lõoke, Ralf 124, 130, 190
Löve, Monika 94, 154
Maat, Janek 82, 88
Maiste, Margus 162
Mark, Ülar 70, 116
Mentaal, Merilen 178
Mitt, Hugo 188
Muru, Urmas 82, 88, 134, 174, 214
Murula, Rein 188
Mutso, Margit 46
Mähar, Taso 24, 84
Mänd, Hillar 128, 170
Müürisepp, Merje 36, 92, 98
Nahkur, Gert 86
Niineväli, Hannes 66
Ojari, Andres 30, 36, 92, 98
Okas, Jüri 52, 72, 216
Olle, Eerik 78
Ollik, Jaan 26
Ott, Kristiina 126
Paling, Raili 192
Palm, Eero 126
Peil, Indrek 122, 216
Pere, Peeter 82, 88, 134, 174, 214
Piel, Aet 88
Piirmets, Tarmo 72
Pikandi, Rain 90
Pilter, Margus 128
Praks, Hannes 60
Puusepp, Raivo 42, 78
Põdra, Laila 104, 215
Põime, Andres 44, 108
Põldme, Priit 34
Rajasaar, Enn 110
Raukas, Inga 154
Rein, Toomas 18
Rikkonen, Lily 152
Rohtla, Andres 56
Roos, Janno 180
Rõõmus, Kalle 48
Saar, Ulla 186
Sarv, Gert 106, 200
Schilf, Helene 132
Schults, Aivo 34, 136
Sejima, Kazuyo 205, 211
Siim, Andres 158, 160
Siinmaa, Olev 8
Soosaar, Kiira 156
Sova, Vahur 28, 90, 118
Stöör, Lembit-Kaur 192
Stöör, Ülo-Tarmo 192
Tael, Pille 146
Tallermo, Rein 52
Tamm, Margus 184
Tammelaan, Tea 32, 64
Tammis, Toomas 74, 154, 180
Tarvas, Peeter 12
Tasa, Jyrki 214
Teedumäe, Tarmo 94, 154
Teigar, Aita 28, 118
Teng, Tiina 54, 76
Tiigi, Indrek 36, 70, 116
Tomiste, Villem 166
Trummal, Tiit 152, 196, 202
Truumaa, Terje 168
Truus, Tiiu 44, 62, 96, 100, 110
Tõra, Karmo 170
Tölpus, Uno 14
Tüür, Mihkel 166
Unt, Indrek 106
Urbel, Emil 24, 76, 84, 96
Vaikla, Argo 54, 76
Vaikla, Katrin 54, 76
Vaikla, Tüüne-Kristin 158
Vaikla, Urmo 158
Vaiksoo, Raul 120, 164, 172
Valdur, Ilmar 30, 36, 92, 98
Valk, Veronika 178
Vallner, Siiri 122, 216
Velbri, Edgar 10
Vellevoog, Kalle 54, 62, 68
Volkov, Igor 174
Vooglaid, Kristiina 136
Isikunimede register/ Index
Eesti Arhitektuurimuuseum/ The Museum of Estonian Architecture: 4, 6, 8, 10, 12, 14, 22
Arne Maasik: 9 (eksterjöör/exterior), 16-17, 20, 23-25, 27 (eksterjöör/exterior), 32-33, 38, 44-45, 54,
55 (eksterjöör vasakul/left exterior, interjöör/interior), 58-59, 62-69, 80-81, 98-99, 106-107, 118-119, 130-131, 141, 154-155
Reio Avaste: 5, 7, 11, 13, 15, 21, 34-35, 46-47, 102-103, 166-167, 182-183
Kalle Veesaar: 9 (interjöör/interior), 112, 138-139, 168-169
Tarvo Varres 18-19, 82-83, 88-91, 116-117, 134-135, 162-163, 174-175, 184-185, 188-189, 194-195, 200-201
Kaido Haagen 26, 27 (interjöör/interior), 28-29, 30-31, 36-37, 39, 42-43, 52-53, 55 (ülemine eksterjöör/upper exterior), 56-57,
60-61, 74-77, 84-85, 92-93, 96-97, 104-105, 110-111, 114-115, 140, 164-165, 198-199
Kaido Teesalu 40-41
Meeli Küttim 48-49
Erik Konze 50-51
Assar Jõepera 70-71, 86-87
Tiit Veermäe 72-73
Taavi Piibemann 78-79
Martin Siplane 94-95, 108-109, 120-122, 126-129, 132-133, 136-137, 144-153, 158-161, 192-193
Tanel Eigi 100, 101 (eksterjöör/exterior)
Dan Mikkin 101 (interjöör/interior)
Andres Alver 113, 142-143, 176-177, 186-187
Paul Riddle 123
Maari Ross 124-125
Aadam Kaarma 156-157
Jaan Sokk 170-171
Enno Rätsep 178, 179 (eksterjöör/exterior)
Kaupo Kikkas 179 (interjöör/interior)
Paco Ulman 180-181
Karli Luik 190-191
Tiit Trummal 196-197, 202-203
Raul Vaiksoo 172-173
Foto 100 MAJA/ HOUSES
Eesti ekspositsioon 12. Veneetsia arhitektuuribiennaalil
Estonian National Exhibition at the 12th International Architecture Exhibition – La Biennale di Venezia
Komissar/ Commissioner: Ülar Mark
Kuraator/ Curator: Karen Jagodin
Autorid/ Authors: Kalle Vellevoog, Tiiu Truus, Martin Pedanik, Karen Jagodin
Makett näitusel/ Model at the exhibition: Mihkel Tüür, Ott Kadarik, Reedik Poopuu, Märten Tuuling, Aivar Hanniotti
Näitust ja kataloogi on toetanud Eesti Kultuurkapital ja Eesti Kultuuriministeerium/ The exhibition and catalogue publication was supported by
Cultural Endowment of Estonia and the Estonian Ministry of Culture
Kataloogi toimetaja/ Editor: Karen Jagodin
Kujundaja/ Graphic design: Martin Pedanik
Keeletoimetaja/ Language Editor: Teele Pehk
Tõlge inglise keelde/ Translation: Juta Ristsoo
Väljaandja/ Publisher: Eesti Arhitektuurikeskus. Estonian Center of Architecture
© Estonian Centre of Architecture
© Karen Jagodin, Martin Pedanik, Tiiu Truus, Kalle Vellevoog
ISBN 978-9949-21-251-4
Tallinn 2010
